Предлагается в аренду административно-торговое помещение в г.Минске на пр. Дзержинского, 21
3 060 р.
Тип
Площадь
Этаж
Описание
Предлагается в аренду административно-торговое помещение в г.Минске на проспекте Дзержинского, 21.
Идеальное место для развития и продвижения своего бизнеса в любом направлении. Стильный и современный ремонт, создающий комфортную обстановку для работников и посетителей.
Торговое и техническое оборудование может быть (по договоренности) предложено одновременно с помещением.
Помещение полностью готово к эксплуатации. Все в отличном состоянии. Дзержинского 21, - это удобная транспортная развязка и соседство с жилыми массивами и деловыми центрами.
Недалеко станция метро «Грушевская».
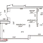
Помещение располагается на первом этаже, имеет отдельный вход. Общая площадь – 43,7 кв.м., в то числе: торговый зал – 39,5 кв.м., умывальная – 3,0 кв.м., туалет – 1,2 кв.м. На полу плитка, на стенах – декоративная штукатурка.
Имеется индивидуальная вытяжка (5 кВт), электросеть 3 фазы по 7-8 кВт.
Или продам.
Параметры объекта
- Тип объекта
Торговое помещение
- Площадь общая
43.70 м²
- Этаж / этажность
1 / 15
- Материал стен
Монолитный
- Ремонт
Хороший
- Отопление
Есть
- Электроснабжение
Есть
- Естественное освещение
Есть
- Вода
Есть
- Санузел
Есть
- Парковка
Есть
- Принадлежность объекта
Частная
- Расположение
В жилом доме
- Номер договора
154/2 от 08.12.2025
Оснащение
Охрана
Видеонаблюдение
Оживленное место
Интернет
Отдельный вход
Час-Пик
Контактное лицо
Примечание
Местоположение
- Область
- Населенный пункт
- Улица
- Номер дома
21
- Район города
- Микрорайон
- Координаты
53.8838, 27.5093
