Снять торговое помещение, г. Минск, ул. Восточная, 166
42 р./м²
Аренда
Следить за ценой
Торговое помещение
Тип
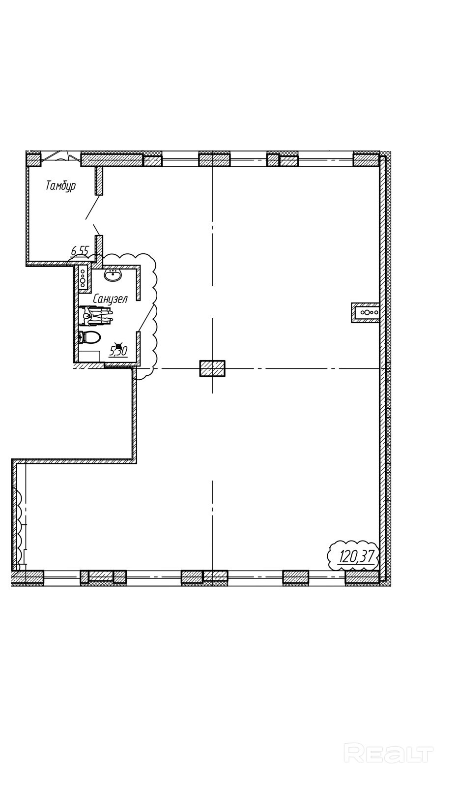
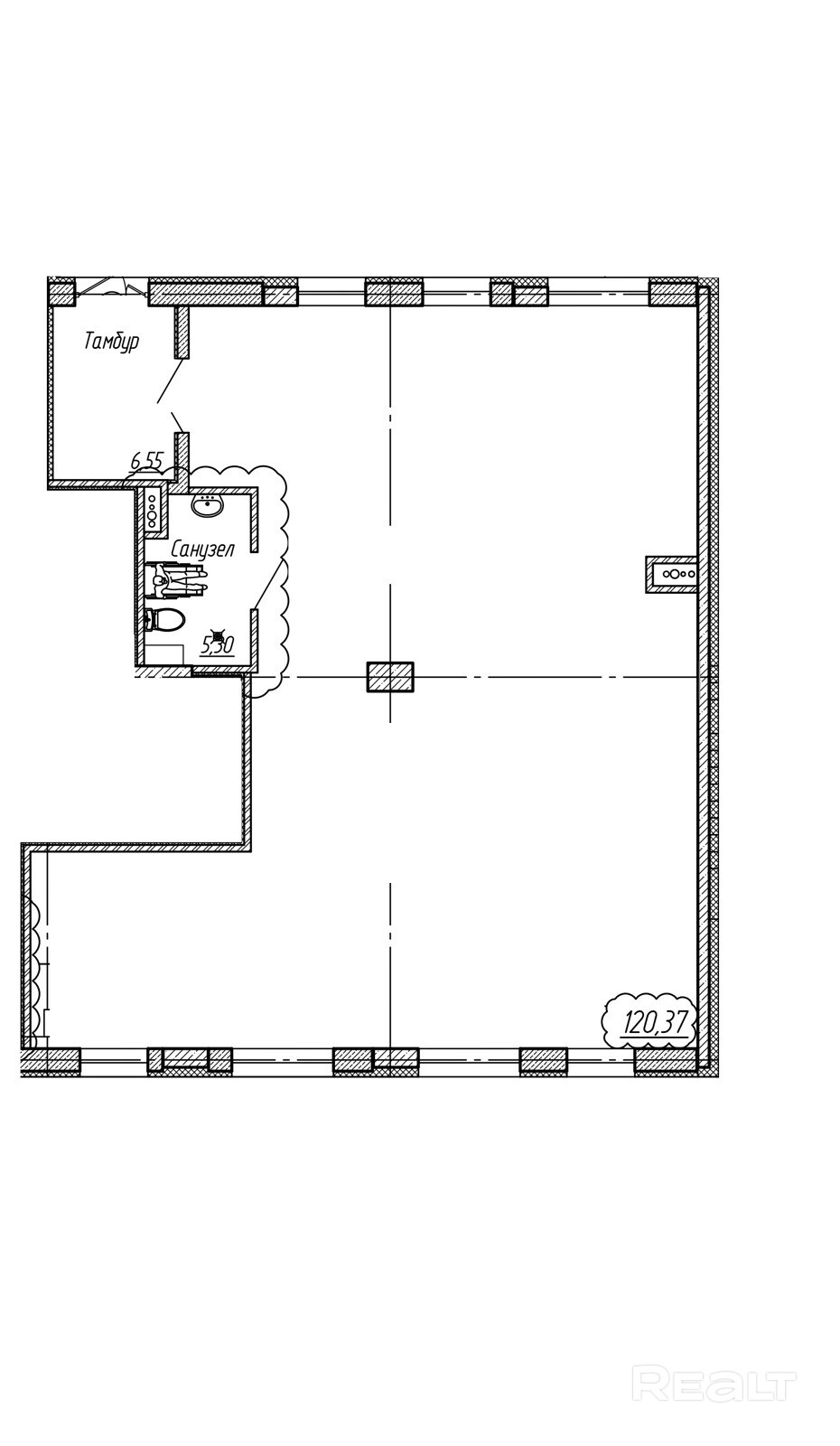
132 м²
Площадь
1 из 9
Этаж
вчера, 15:43ID 3955388
Параметры объекта
- Тип объекта
Торговое помещение
- Площадь общая
132 м²
- Этаж / этажность
1 / 9
- Раздельных помещений
1
- Материал стен
Блочный
- Высота потолков
3.5 м
- Ремонт
Строительная отделка
- Отопление
Есть
- Электроснабжение
Есть
- Естественное освещение
Есть
- Вода
Есть
- Санузел
Есть
- Количество телефонов
1 телефон
- Парковка
Есть
- Принадлежность объекта
Частная
- НДС
НДС нет (0%)
- Юридический адрес
Да
- Новостройка
Да
Оснащение
Интернет
Отдельный вход
Арендодатель
Дмитрий
Контактное лицо
Примечание
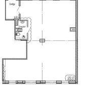
Сдается/Продается отличное помещение с отдельным входом общей площадью 133м: с ОТДЕЛКОЙ; - находится на первой линии; - 1-ый административно-торговый этаж жилого дома; - отдельный вход; - высокие потолки (3,25м); - большая парковка рядом с домом; - удобный вход на уровне тротуара + пандус; - новостройка 2025 года; - много света благодаря окнам с обеих сторон дома; - большой санузел; - подходит под любую деятельность.
Местоположение
- Область
- Населенный пункт
- Улица
- Номер дома
166
- Район города
- Микрорайон
- Координаты
53.9469, 27.605
