Аренда Офиса 711,2 м² с ремонтом и мебелью | 27 кабинетов | Парковка | Охрана
16 035 р.
23 р.≈ 8 $ за м²
- г. Минскул. Володько, 6/1
- Ковальская Слобода
- На карте
Тип
Площадь
Этаж
Описание
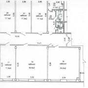
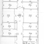
Предлагается в аренду просторный офис, общей площадью 711,2 м2, расположенное на ул. Володько, 6к1. Объект идеально подойдёт для размещения крупной компании, IT-бизнеса, колл-центра, представительства или административного офиса.
Помещение имеет кабинетную систему и включает 27 отдельных кабинетов, что позволяет эффективно организовать работу разных отделов и создать комфортную структуру бизнеса.
Функциональность и планировка:
- 27 отдельных кабинетов
- наличие серверной (готово для IT-инфраструктуры)
- кухня для сотрудников
- 3 санузла
- подсобные помещения для хранения
- объект оснащён всем необходимым для полноценной работы.
- безопасность и контроль доступа.
- наличие мебели.
Дополнительные преимущества:
Парковка со шлагбаумом (доступ по пультам), два отдельных входа, один из которых выходит во двор и подходит для разгрузки.
Возможность круглосуточного доступа.
Отдельно стоит отметить презентабельную входную группу с зоной ресепшн и стойкой регистрации, что создаёт правильное первое впечатление для клиентов и партнёров.
Объект сочетает в себе функциональность, безопасность и готовность к работе.
Больше объявлений тут: www.instagram.com/garant.arenda
Напишите нам в удобный для Вас мессенджер:
Viber | Telegram | WhatsApp
Ответим на Ваши вопросы, предоставим всю необходимую дополнительную информацию.
ООО «Артель Недвижимость»
УНП 193820882
Лицензия Министерства Юстиции №48250000081913 06.03.2025 г.
Договор № 225/2 от 12.03.2026
Параметры объекта
- Тип объекта
Сфера услуг
- Площадь общая
711.20 м²
- Этаж / этажность
1 / 4
- Год постройки
2007
- Класс
B
- Раздельных помещений
1 - 27
- Материал стен
Кирпичный
- Высота потолков
3 м
- Ремонт
Хороший
- Отопление
Есть
- Электроснабжение
220В
- Электрическая мощность
15 кВт
- Естественное освещение
Есть
- Вода
Есть
- Санузел
2 санузла
- Оборудование
Есть
- Количество телефонов
5 телефонов
- Парковка
Есть
- Принадлежность объекта
Частная
- НДС
НДС нет (0%)
- Расположение
В бизнес центре
- Юридический адрес
Да
- Номер договора
225/2 от 11.03.2026
Оснащение
Кондиционер
Охрана
Сигнализация
Видеонаблюдение
Оживленное место
Компьютерная сеть
Гарант Недвижимость
Контактное лицо
Примечание
Местоположение
- Область
- Населенный пункт
- Улица
- Номер дома
6/1
- Район города
- Микрорайон
- Координаты
53.8813, 27.5625
