Помещение с отдельным входом, метро «Грушевка»!
4 809 р.
66 р.≈ 23 $ за м²
- г. Минскул. Щорса, 11
- Грушевка
- На карте
Тип
Площадь
Этаж
Описание
Предлагаем в аренду помещения рядом со станцией метро «Грушевка»!
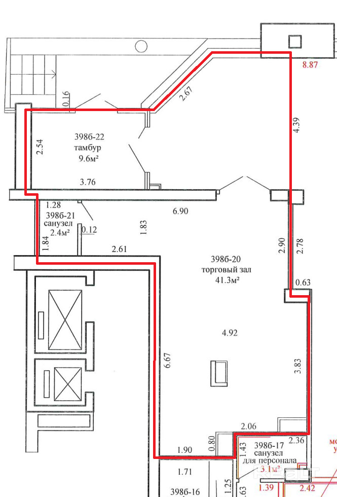
Коммерческое помещение с отдельным входом площадью - 73 м2, располагается на 1-м этаже жилого дома по адресу, ул. Щорса, 11.
Помещение находится рядом со станцией метро «Грушевка», на пересечении улиц Щорса и Дзержинского. Локация с высоким пешеходным трафиком, большой жилой массив. Оживленное место, в шаговой доступности остановки общественного транспорта.
• Метро «Грушевка»;
• Торговое помещение;
• Высокие потолки 3,55-4,85 метров;
• Свой сан. узел в помещении;
• Доступ в помещение 24/7;
• Подъездные пути/парковка.
Проведены коммуникации: электроснабжение, вода, отопление, пожарная сигнализация, вентиляция.
Арендатор не платит комиссию агентству!
Готовы рассмотреть Ваши предложения.
Звоните!
Параметры объекта
- Тип объекта
Сфера услуг
- Площадь общая
73 м²
- Этаж / этажность
1 / 13
- Отопление
Есть
- Электроснабжение
Есть
- Вода
Есть
- Санузел
Есть
- Принадлежность объекта
Частная
- НДС
НДС включен
- Расположение
В жилом доме
- Юридический адрес
Да
- Номер договора
5/1а от 12.01.2026
Оснащение
Оживленное место
Отдельный вход
Иван Козунов
Агент по недвижимости
Примечание
Местоположение
- Область
- Населенный пункт
- Улица
- Номер дома
11
- Район города
- Микрорайон
- Координаты
53.8853, 27.5152
