Аренда торгового помещения в престижном месте на ул. Тихая, 54.
82 р./м²
Тип
Площадь
Этаж
Описание
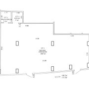
Аренда торгового помещения 115,2 м2 с отдельными входами в престижном месте на ул. Тихая, 54. Настоящий люкс!
Аренда многофункционального помещения на первом этаже современного жилого дома в престижной локации — рядом с Ривьерой и парком Дрозды.
Помещение, общей площадью 115,2 кв.м., назначение - "Торговое".
Два отдельных входа.
Подходит для: кафе, салона красоты, шоурума, офиса, медицинского кабинета, студии услуг.
Характеристики:
-
Высота потолка h=5,08 метра.
-
Площади с высокими потолками и панорамными окнами
-
Современная архитектура, вентфасад, свободная планировка
-
Удобный паркинг и транспортная доступность
-
Отличное соседство и высокий пешеходный трафик
Инженерные системы и коммуникации:
- вентиляция с естественным и искусственным побуждением движения воздуха;
- центральное водоснабжение и отопление;
- пожарная сигнализация.
Инфраструктура:
- Рядом с помещением располагается "Riviera Plaza", "Savlukov Mebel" и "United Company", и др..
Прекрасный вид на комплекс "Riviera".
Транспортное сообщение:
- Более 10 маршрутов городского транспорта курсирует в шаговой доступности от здания.
Ищем арендаторов на длительный срок.
Помещение без отделки, арендные каникулы обсуждаются отдельно.
📍 Тихая, 54 — расположен в премиальном районе с активной инфраструктурой и востребованной аудиторией.
Result Estate — ваш надёжный партнёр на рынке недвижимости.
20 лет опыта наших агентов по недвижимости — это ваш ключ к идеальной сделке: глубокое знание рынка, эксклюзивные предложения, юридическая безопасность и индивидуальный подход. Мы экономим ваше время, деньги и нервы, помогая купить, продать недвижимость быстро, выгодно и с уверенностью в результате!
Все актуальные предложения в одном месте — смотрите на нашем сайте.
Опишите свои пожелания — и мы оперативно подберем для вас лучшие варианты!
ООО «Результативная недвижимость», лицензия выдана Минюстом 26.09.2023 № 02240470, УНП 193703497
Связываясь с нами по данному объекту, Вы даете свое согласие на сбор и обработку персональных данных автоматически.
Параметры объекта
- Тип объекта
Сфера услуг
- Площадь общая
115.20 м²
- Этаж / этажность
1 / 10
- Высота потолков
4 м
- Отопление
Есть
- Электроснабжение
Есть
- Естественное освещение
Есть
- Вода
Есть
- Парковка
Есть
- Принадлежность объекта
Частная
- НДС
НДС включен
- Номер договора
71/1a от 07.10.2025
Оснащение
Отдельный вход
Степан Аваков
Агент по недвижимости
Примечание
Местоположение
- Область
- Населенный пункт
- Улица
- Номер дома
54
- Район города
- Микрорайон
- Координаты
53.9402, 27.4808


