Аренда коммерческого помещения в новостройке на Восточной 166!
5 919 р.
39 р.≈ 14 $ за м²
Тип
Площадь
Этаж
Описание
Предлагаем аренду коммерческого помещения в новостройке на Восточной 166!
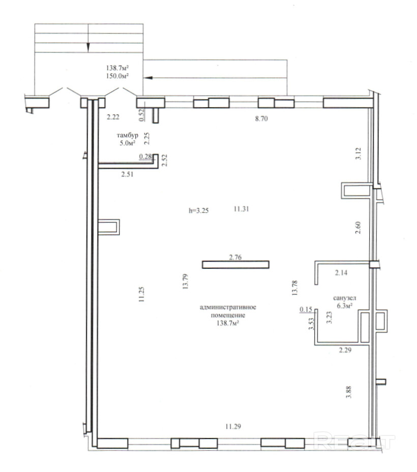
Коммерческое помещение площадью - 150 м2 располагается на 1-м этаже жилого дома по адресу, ул. Восточная, 166.
Рядом с домом остановки общественного транспорта. Локация с хорошим пешеходным и автомобильным трафиком, жилой массив. Рядом строятся новые многоэтажные жилые дома.
• 1-й этаж жилого дома;
• Отдельный вход;
• Свой сан. узел;
• Отдельная вентиляция;
• Естественное освещение;
• Высокие потолки (3,24 м);
• Доступ в помещение 24/7;
• Подъездные пути/парковка.
Проведены коммуникации: электроснабжение, вода, отопление, вентиляционная система.
Арендатор не платит комиссию агентству!
Готовы рассмотреть Ваши предложения.
Звоните!
Параметры объекта
- Тип объекта
Медицина
- Площадь общая
150 м²
- Этаж / этажность
1 / 10
- Год постройки
2025
- Раздельных помещений
1
- Высота потолков
3 м
- Ремонт
Без отделки
- Отопление
Есть
- Электроснабжение
Есть
- Электрическая мощность
30 кВт
- Естественное освещение
Есть
- Вода
Есть
- Санузел
Есть
- Парковка
Есть
- Принадлежность объекта
Частная
- НДС
НДС нет (0%)
- Расположение
В жилом доме
- Юридический адрес
Да
- Номер договора
49/1а от 10.02.2026
Оснащение
Отдельный вход
Иван Козунов
Агент по недвижимости
Примечание
Местоположение
- Область
- Населенный пункт
- Улица
- Номер дома
166
- Район города
- Микрорайон
- Координаты
53.9469, 27.605
