Сдаём в долгосрочную аренду здание (под производство или хранение). п.Городище
31 465 р.
16 р.≈ 6 $ за м²
- Минская областьМинский р-нп. Городище146/10
- На карте
Тип
Площадь
Этаж
Описание
Сдаём в долгосрочную аренду здание (под производство или хранение).
п.Городище
Здание находится неподалёку от Юхновки, Логойское направление, на территории бывшего пионерского лагеря, в настоящий момент туристический комплекс .
Хорошие подъездные пути. Располагается среди леса, с дороги обзора здания нет.
В здании есть подъемник, грузовой лифт. Территория вокруг столовой огорожена.
В здании подключено электричество. Канализация.Вода перекрыта.
С учётом специфики здания, может разместиться производство пивоварения, фасовка, под хранение, мебельное производство, сборку.
ООО "Агентство недвижимости ГермесГрупп». УНП 193776843. Лицензия Министерства Юстиции Республики Беларусь N 02240/487 от 07.08.2024 г.
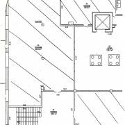
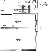
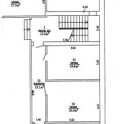
Параметры объекта
- Тип объекта
Здание
- Площадь общая
1966 м²
- Этаж / этажность
2 / 2
- Год постройки
1967
- Раздельных помещений
9
- Материал стен
Кирпичный
- Ремонт
Без отделки
- Отопление
Есть
- Электроснабжение
380В
- Естественное освещение
Есть
- Вода
Есть
- Санузел
Есть
- Парковка
Есть
- Принадлежность объекта
Частная
- Расположение
Частный сектор
- Юридический адрес
Да
- Номер договора
4/1а от 03.02.2026
Оснащение
Рампа
Отдельный вход
Виктория Викторовна Иванова
Агент по недвижимости
Примечание
Местоположение
- Область
- Район
Минский район
- Населенный пункт
- Номер дома
146/10
- Сельсовет
Колодищанский с/с
- Направление
Московское, 14 км от МКАД
- Координаты
53.983767, 27.835197
