Снять помещение, г. Минск, ул. Козлова, 8
60 р./м²
- г. Минскул. Козлова, 8
- Площадь Победы
- На карте
Тип
Площадь
Этаж
Описание
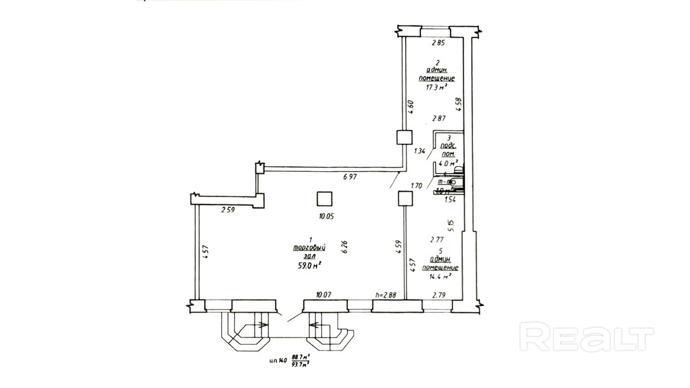
Аренда торгового помещения в центре г. Минска по адресу: ул. Козлова 8
Тип объекта: Администартивно-торговое помещение, площадью: 93,7 м2.
-
Помещение находится в окружении духа старого Минска, где история встречается с современными ритмами.
В двух шагах — бурлящий проспект, уютные кофейни, театры и главные достопримечательности.
Отделка помещения:
- Пол- наливной;
- Стены - окрашены;
- Потолок- в стиле Loft.
Инженерные системы и коммуникации:
- вентиляция-принудительная;
- центральное водоснабжение и отопление;
- пожарная сигнализация;
- выделенная электрическая мощность помещения - 20 кВт;
- установлены приборы учета.
Инфраструктура и удобства:
- Помещение находится в месте, с высоким пешеходным и автомобильным трафиком.
- Удобные подъездные пути и парковочные места в непосредственной близости от помещений.
-
Отличная транспортная развязка: множество автобусных, трамвайных остановок и станция метро «Площадь Победы» в нескольких минутах ходьбы.
Result Estate — ваш надёжный партнёр на рынке недвижимости.
20 лет опыта наших агентов по недвижимости — это ваш ключ к идеальной сделке: глубокое знание рынка, эксклюзивные предложения, юридическая безопасность и индивидуальный подход. Мы экономим ваше время, деньги и нервы, помогая купить, продать недвижимость быстро, выгодно и с уверенностью в результате!
Все актуальные предложения в одном месте — смотрите на нашем сайте.
Опишите свои пожелания — и мы оперативно подберем для вас лучшие варианты!
ООО «Результативная недвижимость», лицензия выдана Минюстом 26.09.2023 № 02240470, УНП 193703497
Связываясь с нами по данному объекту, Вы даете свое согласие на сбор и обработку персональных данных автоматически.
Параметры объекта
- Тип объекта
Помещение
- Площадь общая
93.70 м²
- Этаж / этажность
1 / 5
- Ремонт
Хороший
- Отопление
Есть
- Электроснабжение
Есть
- Естественное освещение
Есть
- Вода
Есть
- Санузел
Есть
- Принадлежность объекта
Частная
- НДС
НДС нет (0%)
- Расположение
В жилом доме
- Номер договора
50/1а от 05.09.2025
Павел Винников
Агент по недвижимости
Примечание
Местоположение
- Область
- Населенный пункт
- Улица
- Номер дома
8
- Район города
- Микрорайон
- Координаты
53.9078, 27.5842
