Снять помещение, г. Минск, ул. Савицкого, 14
49 р./м²
- г. Минскул. Савицкого, 14
- Аэродромная (2024)
- На карте
Тип
Площадь
Этаж
Описание
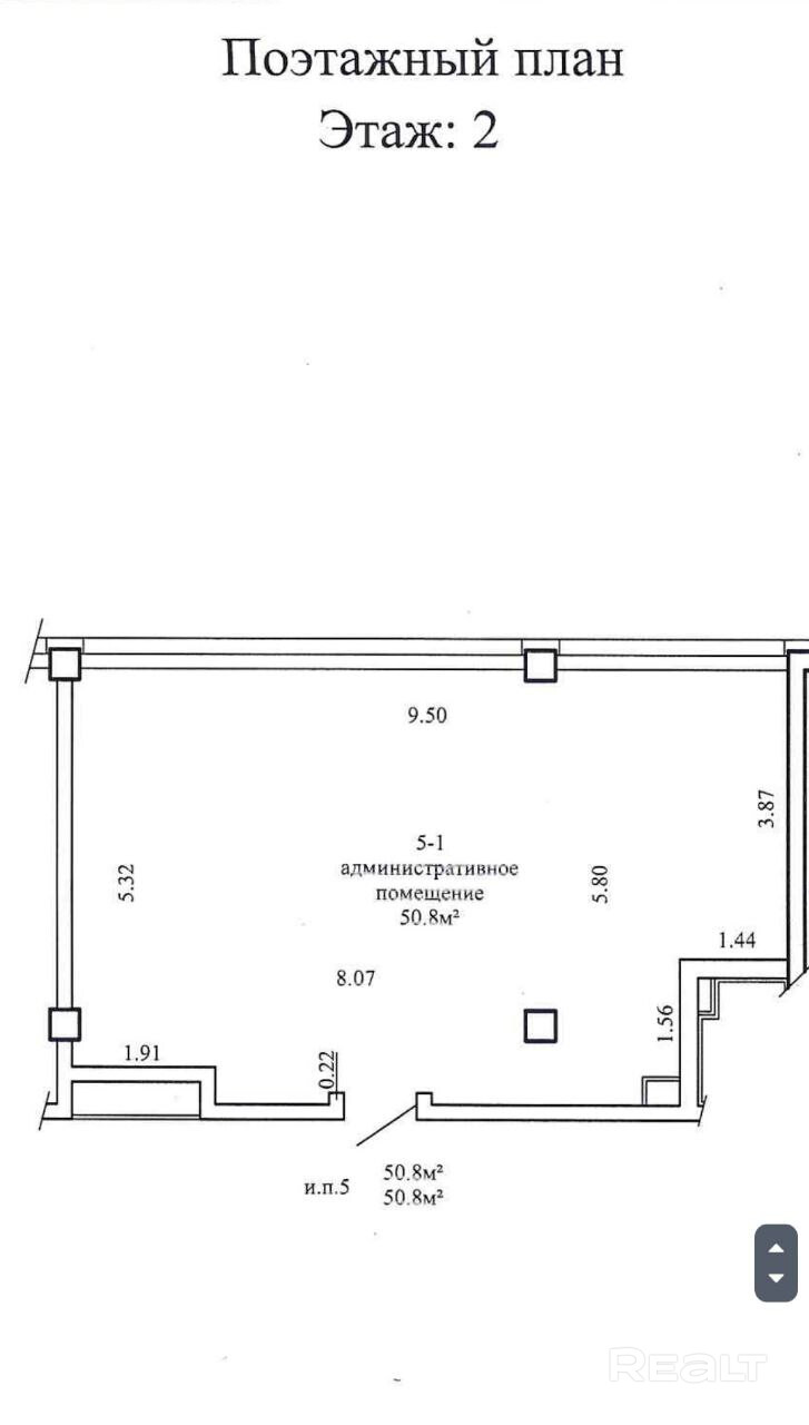
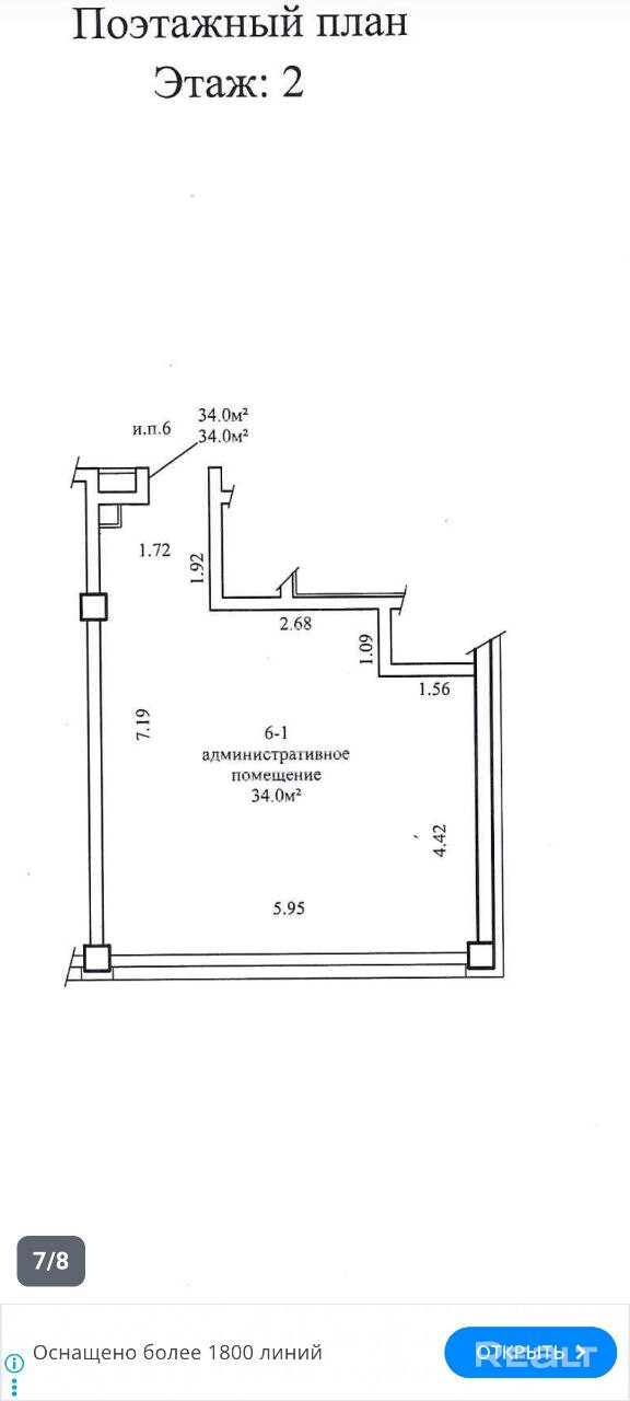
Предлагаем в аренду коммерческие помещения на 2ом этаже 3х этажного нового здания торгово-административного назначения в ЖК Минск мир по адресу: ул. Михаила Савицкого, 14. Перспективная локация для бизнеса. Целевое назначение - административное. Общая площадь всего этажа 317,4 кв.м. Сдается каждое помещение отдельно, либо возможно аренда половины этажа, либо весь этаж целиком. Помещения без отделки, расположены в здании с круглосуточным доступом 24/7, с лифтом. На первом этаже будет открыт магазин. Помещения совершенно новые и полностью под отделку (возможно частично отделка за счет собственника), это пространство можно обустроить с учетом ваших пожеланий и стилистикой. Вход отдельно на весь этаж есть с/у и коммуникации, есть возможность выхода на террасу.
Помещение подойдет под сферу услуг, эстетическую косметологию, калон красоты, офис, пункт выдачи заказов, помещение бытового обслуживания, компьютерный либо кибер клуб и др. Удобные подъездные пути, парковка, здание расположена в полностью жилом районе в котором все проживают. В будущем будет построена современная школа.
Гибкие условия аренды! Звоните организуем просмотр!
Параметры объекта
- Тип объекта
Помещение
- Площадь общая
34 - 165.10 м²
- Этаж / этажность
2 / 3
- Год постройки
2025
- Раздельных помещений
4
- Материал стен
Блочный
- Высота потолков
3 м
- Ремонт
Без отделки
- Отопление
Есть
- Электроснабжение
Есть
- Естественное освещение
Есть
- Вода
Есть
- Санузел
Есть
- Принадлежность объекта
Частная
- НДС
НДС нет (0%)
- Расположение
В торговом центре
- Юридический адрес
Да
- Новостройка
Да
- Номер договора
2/1А от 19.01.2026
Оснащение
Сигнализация
Охрана
Примечание
Местоположение
- Область
- Населенный пункт
- Улица
- Номер дома
14
- Район города
- Микрорайон
- Координаты
53.8665, 27.5329
