Снять помещение, г. Слуцк, ул. Ленина, 237
от 1 917 р.
Аренда
Следить за ценой
Помещение
Тип
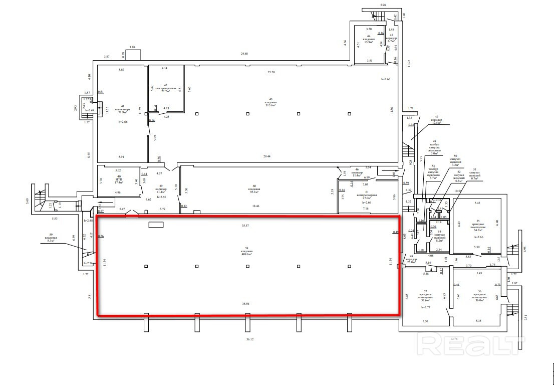
408.60 м²
Площадь
0 из 1
Этаж
22.08.2025ID 3857593
Параметры объекта
- Тип объекта
Помещение
- Площадь общая
408.60 м²
- Этаж / этажность
0 / 1
- Год постройки
1987
- Раздельных помещений
1
- Материал стен
Кирпичный
- Высота потолков
2.7 м
- Отопление
Есть
- Электроснабжение
Есть
- Принадлежность объекта
Частная
- НДС
НДС включен
- Расположение
В торговом центре
- Аукцион
Да
Арендодатель
Любовь
Контактное лицо
Примечание
Реализуется право заключения договора аренды помещения (кладовая) на подвальном этаже торгового здания. Срок аренды - 3 года. Размер арендной платы за месяц составляет 2 451,60 бел. руб. (с НДС 20%). Более подробная информация на ИПМ-Торги, номер лота 277397
Местоположение
- Область
- Район
- Населенный пункт
- Улица
- Номер дома
237
- Направление
Слуцкое, 90 км от МКАД
- Координаты
53.037737807, 27.565876092
