офис вашего РОСТА на ул.Восточной, д. 115, 29 м кв
950 р.
32 р.≈ 11 $ за м²
Тип
Площадь
Этаж
Описание
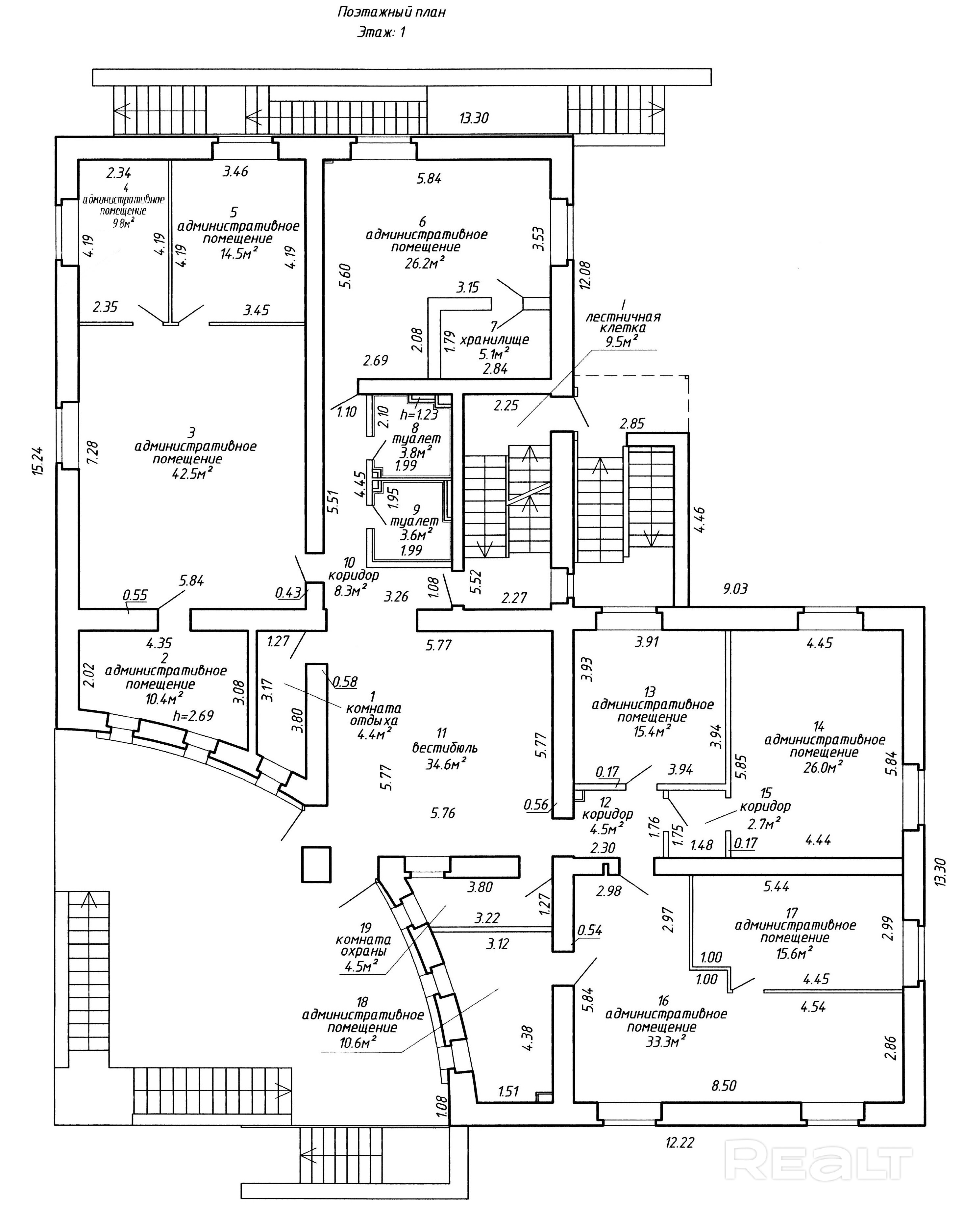
В отдельно стоящем административном здании сдаются офисные помещения:
- на 1 этаже сдаётся помещение 29 м2. За ними закреплено 1 место на закрытой парковке.
- в подвале (сухой, тёплый) сдаются помещения 50-90 м2 (3 помещения)
Арендная плата офисных помещений рассчитывается исходя из = 32 руб/м2 без НДС
Здание оборудовано: естественное освещение, полная внутренняя отделка, электроснабжение с поэтажными счётчиками учёта, отопление от собственной газовой котельной в здании, холодное и горячее водоснабжение, вентиляция, кондиционирование, отдельные санузлы, телефонные линии (оптоволокно), Интернет- и др. коммуникации, администратор круглосуточно.
Аренда машиномест на закрытой парковке во дворе включена в стоимость аренды. Есть места на внешней парковке. Запарковаться в ближайшем окружении не представляет особого труда.
Доехать можно автобусом №24 по ул.Л.Беды или трамваями по ул.Я.Коласа.
Параметры объекта
- Тип объекта
Офис
- Площадь общая
29 м²
- Этаж / этажность
1 / 3
- Год постройки
2022
- Класс
B
- Раздельных помещений
1
- Материал стен
Кирпичный
- Высота потолков
2.7 м
- Ремонт
Хороший
- Отопление
Есть
- Электроснабжение
Есть
- Электрическая мощность
25 кВт
- Естественное освещение
Есть
- Вода
Есть
- Газ
Есть
- Санузел
2 санузла
- Оборудование
Есть
- Количество телефонов
Больше пяти
- Парковка
Есть
- Принадлежность объекта
Частная
- НДС
НДС нет (0%)
- Юридический адрес
Да
Оснащение
Кондиционер
Видеонаблюдение
Сигнализация
Охрана
Компьютерная сеть
Интернет
Арендодатель
Глеб
Контактное лицо
Примечание
Местоположение
- Область
- Населенный пункт
- Улица
- Номер дома
115
- Район города
- Микрорайон
- Координаты
53.9372, 27.5966
