Аренда помещения ЗДРАВООХРАНЕНИЯ в ЖК Маяк Минска!
66 р./м²
Тип
Площадь
Этаж
Описание
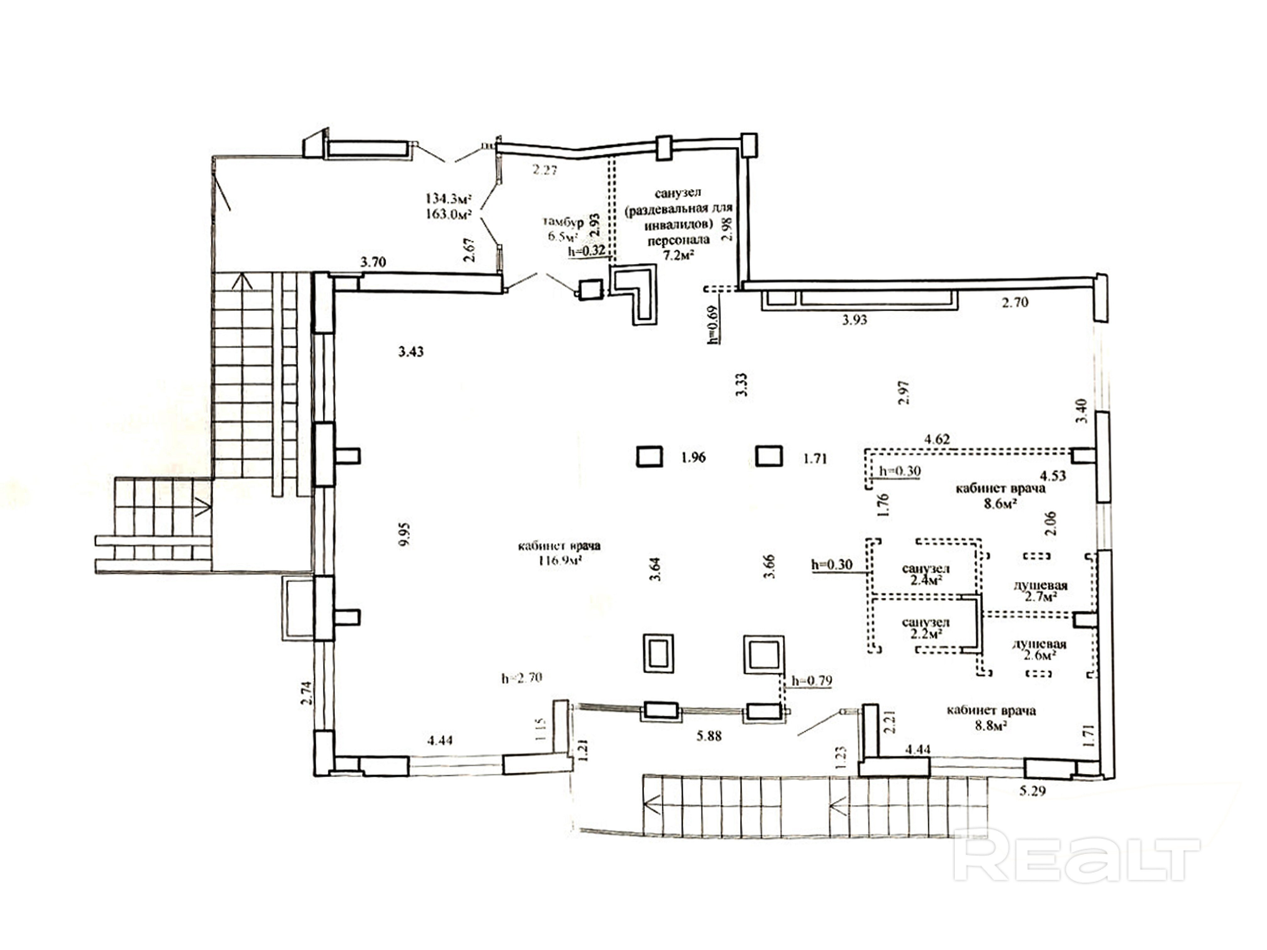
Изолированное помещение 163,0 кв.м. в престижном ЖК «Маяк Минска» на 1 этаже.
Помещение, с 2 отдельными входами общей площадью 163,0 кв.м.
Назначение – помещение здравоохранения.
Черновая отделка, панорамные окна, высота потолка h=2.7 метра, безбарьерная среда. Здание обслуживается товариществом собственников. Доступ 24/7.
Помещение идеально подойдет для медицинского центра, стоматологию, услуги косметолога, детского центра, другой различной сферы услуг.
Инженерные системы и коммуникации:
- приточно-вытяжная вентиляция (собственная вентиляционная установка);
- разведены электрические сети;
- центральное водоснабжение и отопление;
- пожарная сигнализация.
Парковка:
Свободная плоскостная парковка возле здания.
Транспортное сообщение:
Станция метро «Восток» и более десяти маршрутов городского транспорта курсирует в шаговой доступности от здания.
автобусы: 27, 80, 91, 113с, 350, 351, 447, 451, 451в, 451у, 461, 500э, 509а
маршрутки: 1002, 1064, 1152, 1455, 1547, 1222, 2415ск, 2463тк, 2469, 2469а, 2470тк, 2471тк, 3500тк, 3660тк
троллейбусы: 1, 41, 42
Инфраструктура:
Множество кафе и ресторанов (Васильки, Gan Bei, Тьерри, Cofix, KFC, Papa Doner, Salateira, Хинкальня), продуктовых магазинов (Green, Vegetus, Грошык), а также различные услуги (Аптеки, ТЦ «Dana Mall», фитнес-клуб «Адреналин», салон красоты, парикмахерская ) и банковские отделения (Беларусбанк, БСБ Банк, Белгазпромбанк, Банк БелВЭБ, Сбер Банк, Технобанк).
Result Estate — ваш надёжный партнёр на рынке недвижимости.
20 лет опыта наших агентов по недвижимости — это ваш ключ к идеальной сделке: глубокое знание рынка, эксклюзивные предложения, юридическая безопасность и индивидуальный подход. Мы экономим ваше время, деньги и нервы, помогая купить, продать недвижимость быстро, выгодно и с уверенностью в результате!
Все актуальные предложения в одном месте — смотрите на нашем сайте.
Опишите свои пожелания — и мы оперативно подберем для вас лучшие варианты!
ООО «Результативная недвижимость», лицензия выдана Минюстом 26.09.2023 № 02240/470, УНП 193703497
Связываясь с нами по данному объекту, Вы даете свое согласие на сбор и обработку персональных данных автоматически.
Параметры объекта
- Тип объекта
Офис
- Площадь общая
163 м²
- Этаж / этажность
1 / 10
- Высота потолков
2.7 м
- Ремонт
Без отделки
- Отопление
Есть
- Электроснабжение
Есть
- Естественное освещение
Есть
- Вода
Есть
- Парковка
Есть
- Принадлежность объекта
Частная
- НДС
НДС нет (0%)
- Расположение
В жилом доме
- Номер договора
39/1а от 26.03.2026
Максим Пешевич
Агент по недвижимости
Примечание
Местоположение
- Область
- Населенный пункт
- Улица
- Номер дома
7
- Район города
- Микрорайон
- Координаты
53.9295, 27.6512
