Снять офис 166,1 м² в бизнес-центре по пер. Козлова, 7Б
25 р./м²
- г. Минскпер. Козлова, 7/Б
- Пролетарская
- На карте
Тип
Площадь
Описание
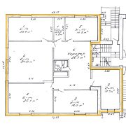
В аренду предлагается уютный офисный блок 166,1 м2 на первом этаже бизнес-центра (пер. Козлова, 7Б).
Кабинетная планировка: 6 кабинетов с естественным освещением, комната приема пищи, собственный санузел. Есть возможность организации зоны ресепшн.
Доступны к аренде:
-166,1 м2 (блок из 6 кабинетов, 1-й этаж)
Отделка помещения:
-напольное покрытие: линолеум, плитка
-стены: окрашены
-потолок: окрашен, высота 2,8 м
-окна: ПВХ стеклопакеты
-ремонт: офисный, свежий
Инженерные системы:
-вентиляция естественная
-покабинетное кондиционирование
-высокоскоростной интернет
-собственный санузел
Парковка:
-2 машиноместа на наземной парковке + 2 на парковке со шлагбаумом
-входят в арендную стоимость
-возможна парковка вдоль проездов и на прилегающих улицах
Инфраструктура и логистика:
-остановки общественного транспорта в 2–3 минутах пешком
-до ст. м. «Площадь Победы» и «Тракторный Завод» — 10–15 минут
-удобный выезд на ул. Долгобродская и МКАД
-кофепоинт в холле бизнес-центра, бизнес-ланчи в кафе в соседнем здании
-в перерывах — прогулки по набережной Слепянской водной системы (в шаговой доступности, вид из окон)
- инфраструктура района позволяет решать любые рабочие и бытовые вопросы без лишних перемещений, от общепита до отделения банка.
Result Estate — ваш надёжный партнёр на рынке недвижимости.
20 лет опыта наших агентов по недвижимости — это ваш ключ к идеальной сделке: глубокое знание рынка, эксклюзивные предложения, юридическая безопасность и индивидуальный подход. Мы экономим ваше время, деньги и нервы, помогая купить, продать недвижимость быстро, выгодно и с уверенностью в результате!
Все актуальные предложения в одном месте — смотрите на нашем сайте.
Опишите свои пожелания — и мы оперативно подберем для вас лучшие варианты!
ООО «Результативная недвижимость», лицензия выдана Минюстом 26.09.2023 № 02240/470, УНП 193703497
Связываясь с нами по данному объекту, Вы даете свое согласие на сбор и обработку персональных данных автоматически.
Параметры объекта
- Тип объекта
Офис
- Площадь общая
166.10 м²
- Этажность
5
- Отопление
Есть
- Электроснабжение
Есть
- Естественное освещение
Есть
- Вода
Есть
- Санузел
Есть
- Принадлежность объекта
Частная
- НДС
НДС включен
- Расположение
В бизнес центре
- Номер договора
32/1а от 15.03.2026
Максим Пешевич
Агент по недвижимости
Примечание
Местоположение
- Область
- Населенный пункт
- Улица
- Номер дома
7/Б
- Район города
- Координаты
53.896672478, 27.59970344
