Автономный офисный блок 127 м² в центральной части города
33 р./м²
Тип
Площадь
Этаж
Описание
Аренда офисного блока на втором этаже с отдельным входом, у будущего метро: ул. Кропоткина, 91, свой вход и личный климат-контроль - акцент на независимость и комфорт.
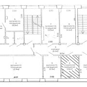
Общая площадь: 127,2 м2 (возможна аренда части помещения).
Кабинетная планировка: 7 кабинетов с естественным освещением, доступна аренда без мебели, а также с мебелью, техникой (принтеры, компьютеры, плоттер профессиональный для широкоформатной печати и др.).
Презентабельная зона подъема: широкая лестница ведет непосредственно в ваш офис, минуя общие коридоры и соседей. Доступ: 24/7.
Отделка помещения:
-напольное покрытие: ламинат (кабинеты), плитка (коридор)
-стены: обои
-окна: стеклопакеты
-ремонт: офисный в хорошем состоянии
Инженерные системы и коммуникации:
-приточно-вытяжная вентиляция
-покабинетное кондиционирование
-высокоскоростной интернет
-собственный с/у
Парковка:
предоставляется 1 машиноместо на наземной парковке со шлагбаумом (бесплатно, при аренде всей площади), доступны места в аренду в ближайшем современном подземном паркинге.
Развитая инфраструктура и логистика:
Офис расположен в развивающемся деловом квартале Центрального района. В непосредственной близости находится современный МК «Фарфоровый», что формирует статусное соседство и активную бизнес-среду, обеспечивает доступ к новым бизнес-центрам, кафе, кофейням, магазинам, тренажерным залам и сервисам. В радиусе 100 метров — головные офисы крупнейших банков.
Транспортная доступность:
Удобные выезды на ключевые магистрали города: проспект Машерова, улицы Максима Богдановича, Веры Хоружей и второе кольцо.
Отличная связь со ст. м. «Немига» и «Площадь Якуба Коласа».
Метро: в 2028- 2029 году в шаговой доступности откроются станции «Комаровская» и «Переспа», что значительно увеличивает привлекательность объекта.
Result Estate — ваш надёжный партнёр на рынке недвижимости.
20 лет опыта наших агентов по недвижимости — это ваш ключ к идеальной сделке: глубокое знание рынка, эксклюзивные предложения, юридическая безопасность и индивидуальный подход. Мы экономим ваше время, деньги и нервы, помогая купить, продать недвижимость быстро, выгодно и с уверенностью в результате!
Опишите свои пожелания — и мы оперативно подберем для вас лучшие варианты!
ООО «Результативная недвижимость», лицензия выдана Минюстом 26.09.2023 № 02240470, УНП 193703497
Связываясь с нами по данному объекту, Вы даете свое согласие на сбор и обработку персональных данных автоматически.
Параметры объекта
- Тип объекта
Офис
- Площадь общая
127.20 м²
- Этаж / этажность
2 / 4
- Материал стен
Кирпичный
- Отопление
Есть
- Электроснабжение
Есть
- Естественное освещение
Есть
- Вода
Есть
- Санузел
Есть
- Принадлежность объекта
Частная
- НДС
НДС нет (0%)
- Номер договора
22/1а от 02.03.2026
Максим Пешевич
Агент по недвижимости
Примечание
Местоположение
- Область
- Населенный пункт
- Улица
- Номер дома
91
- Район города
- Микрорайон
- Координаты
53.9207, 27.5578
