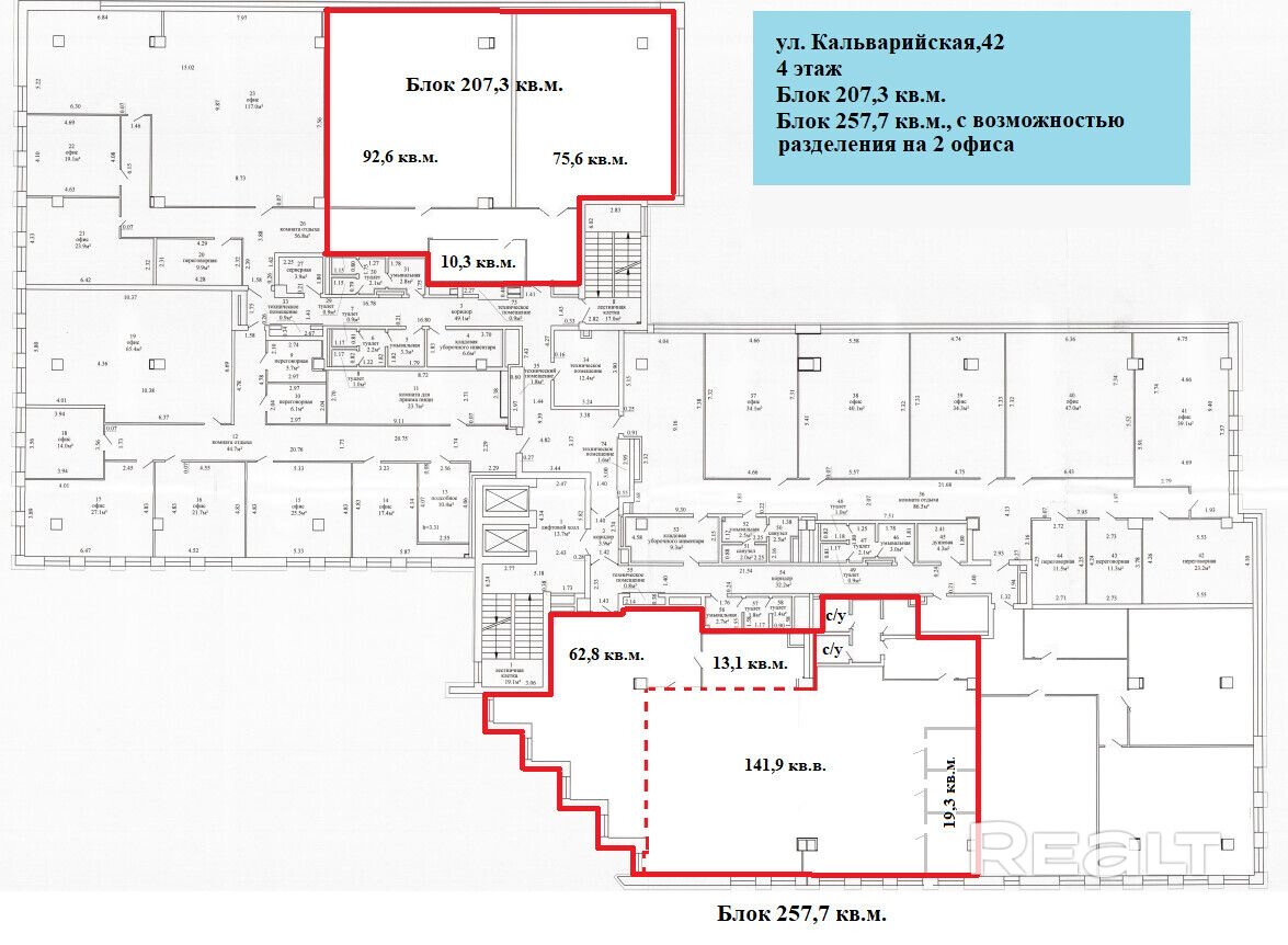
Офис 207,3 м2 в БЦ "Каскад Альфа", Кальварийская, 42.
48 р./м²
- г. Минскул. Кальварийская, 42
- Молодежная
- На карте
Тип
Площадь
Этаж
Описание
Офисный блок (207,3 м2 ) на 4 этаже бизнес-цента "Каскад-Альфа", по адресу: ул. Кальварийская, 42.
Свободная планировка, свежий ремонт, система кондиционирования (Open-Space, изолированные помещения)
Качественная отделка, свежий ремонт, наличие всех коммуникаций, собственный санузел.
Возможна аренда парковочных мест на паркинге.
Шаговая доступность метро Молодежная, на первом этаже расположено бистро и кофепоинт.
Коммунальные + эксплуатационные платежи:
13р/м2 - зимний период;
10р/м2 - летний период.
Возможна аренда блока 75,9 м2, 141,9 м2 , 257,7 м2.
Арендатор (Вы) не оплачивает услуги агентства.
Звоните ответим на все Ваши вопросы.
Параметры объекта
- Тип объекта
Офис
- Площадь общая
207.30 м²
- Этаж / этажность
4 / 6
- Год постройки
2014
- Класс
B, A
- Раздельных помещений
2 - 3
- Материал стен
Монолитный
- Ремонт
Хороший
- Отопление
Есть
- Электроснабжение
Есть
- Естественное освещение
Есть
- Вода
Есть
- Санузел
Есть
- Оборудование
Есть
- Количество телефонов
Больше пяти
- Парковка
Есть
- Принадлежность объекта
Частная
- НДС
НДС включен
- Расположение
В бизнес центре
- Юридический адрес
Да
- Номер договора
37/1а от 11.08.2025
Оснащение
Кондиционер
Охрана
Оживленное место
Компьютерная сеть
Интернет
Примечание
Местоположение
- Область
- Населенный пункт
- Улица
- Номер дома
42
- Район города
- Координаты
53.9084, 27.5162
