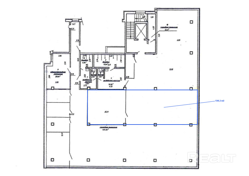
Офис 136,2 м2 на Железнодорожной 138 (где ''Адреналин'')
36 р./м²
Аренда
Следить за ценой
Офис
Тип
136.20 м²
Площадь
4 из 4
Этаж
19.02.2026ID 4038007
Описание
Коммуникации?
- полностью готовая отделка
- все коммуникации (вода, сан.узлы, отопление, эл-во, интернет и пр.)
- новый ремонт
Где покушать?
- рядом ТЦ GLOBO, на 1 этаже которого магазин Санта (больше 1000 кв.м.) с кулинарией
- больше 10 кафе и кофеен в соседнем здании ТЦ (кафе гараж, doner king , KFC, пончиковая и пр.)
Что есть рядом?
- метро Михалово в 200 метрах от входа в здание
- парковая зона с дорожками (в границах ул. Железнодорожная и пр. Дзержинского — это перейти дорогу 2 мин. и ты в парке)
- фитнес-центр Адреналин с бассейном, баней и теннисными кортами рядом с парком
- банковские отделения
- две аптеки
Остались вопросы?
- Если нравится это помещение, ищете что-то похожее, но не такое или не такой площади, у нас еще около 10 похожих объектов в Минске. Есть другие площади. Застройщики, сдаем сами напрямую, так что никаких дополнительных комиссий.
Не всё публикуем, так что звоните/пишите/спрашивайте, вдруг сможем предложить что-то, что понравится :)
Параметры объекта
- Тип объекта
Офис
- Площадь общая
136.20 м²
- Этаж / этажность
4 / 4
- Материал стен
Монолитный
- Ремонт
Хороший
- Отопление
Есть
- Электроснабжение
Есть
- Естественное освещение
Есть
- Вода
Есть
- Санузел
Есть
- Парковка
Есть
- Принадлежность объекта
Частная
- НДС
НДС включен
- Расположение
В бизнес центре
- Юридический адрес
Да
Оснащение
Кондиционер
Охрана
Видеонаблюдение
Интернет
Арендодатель
(собственник)
Контактное лицо
Примечание
Аренда готового офиса по адресу ул.Железнодорожная,138 в 200 метрах от входа в метро Михалово рядом с парковой зоной. Панорамное остекление предлагает замечательный вид на город.
Местоположение
- Область
- Населенный пункт
- Улица
- Номер дома
138
- Район города
- Микрорайон
- Координаты
53.8734, 27.4984
