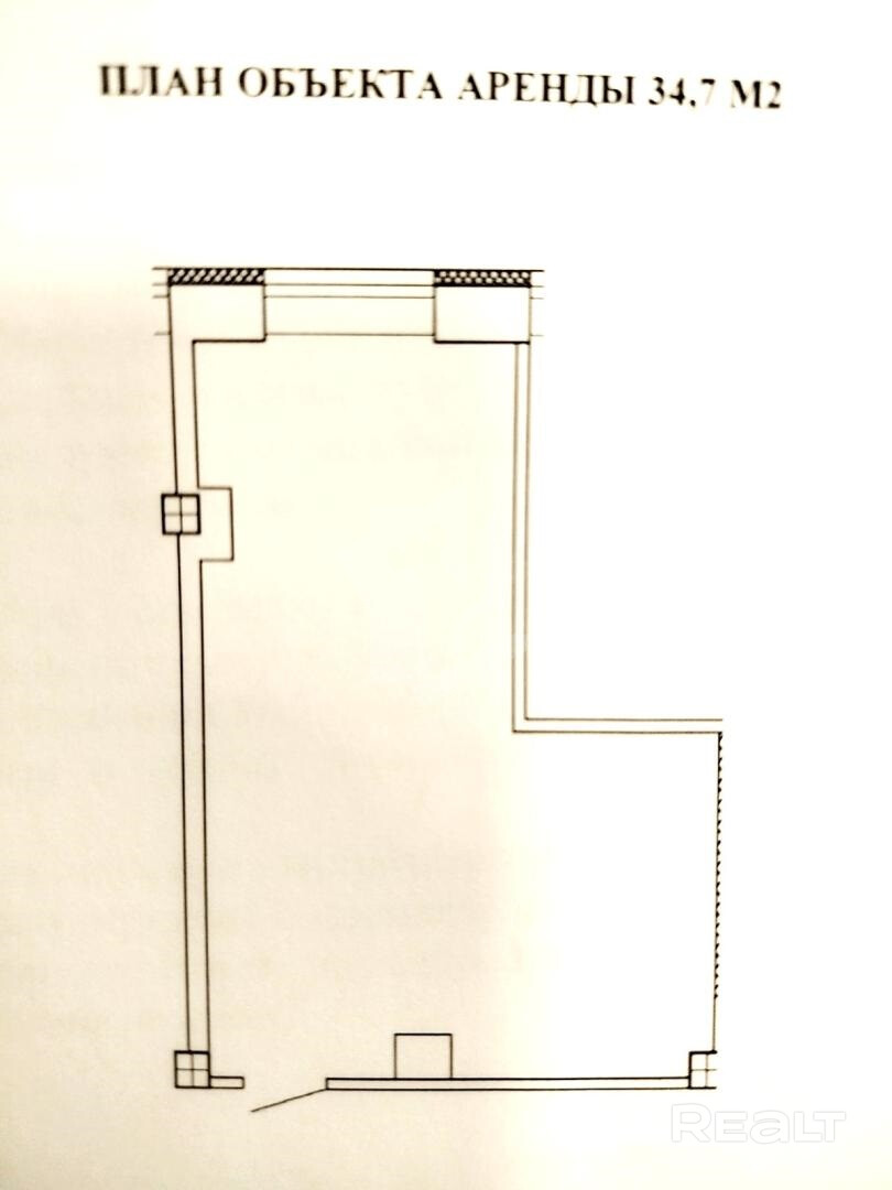
Помещение в аренду 34,7м2,пр-т Независимости 84А
2 151 р.
62 р.≈ 22 $ за м²
- г. Минскплощадь Независимости, 84/А
- Парк Челюскинцев
- На карте
Тип
Площадь
Этаж
Описание
Аренда коммерческого помещения в центре Минска – 34,7 м2.
Предлагается в аренду просторное и современное коммерческое помещение, расположенное на третьем этаже многофункционального здания по адресу проспект Независимости, 84А.
Престижное расположение. Помещение находится в районе с развитой инфраструктурой и высоким трафиком. В непосредственной близости – жилой комплекс «Парк Челюскинцев», остановки общественного транспорта, а также станции метро «Парк Челюскинцев» и «Московская».
Основные преимущества:
- Просторная площадь: 34,7 м2.
- Высокие потолки: 4,2 м, создающие ощущение простора.
- Электроснабжение: 220 В, мощность 10 кВт.
- Современная инженерия: отопление, водоснабжение, пожарная сигнализация.
- Эффективная вентиляция: приточно-вытяжная система для комфортного микроклимата.
- Наличие искусственного света.
- Безопасность: круглосуточная охрана и система видеонаблюдения.
- Удобный доступ: парковочные места и удобные подъездные пути.
- Рекламные возможности: размещение рекламных конструкций на фасаде здания.
Идеально подходит для офисов крупных компаний и представительств, услуги (есть возможность вывода воды), интернет -магазин иное и образовательных курсов.
Ваш бизнес в центре событий! Помещение сочетает удобство, престиж и функциональность, обеспечивая комфортную и продуктивную рабочую среду.
Гибкие условия аренды! Готовы рассмотреть Ваши предложения!
Арендатор не оплачивает услуги агентства.
Организуем показ в удобное время.
Звоните!
Больше объявлений тут: www.instagram.com/garant.arenda
Напишите нам в удобный для Вас мессенджер:
Viber | Telegram | WhatsApp
Ответим на Ваши вопросы, предоставим всю необходимую дополнительную информацию.
Больше объявлений тут: www.instagram.com/garant.arenda
ООО «Артель Недвижимость»
УНП 193820882
Лицензия Министерства Юстиции №48250000081913 06.03.2025 г.
Договор 175/2а от 08.10.2025г.
Параметры объекта
- Тип объекта
Офис
- Площадь общая
34.70 м²
- Этаж / этажность
3 / 3
- Год постройки
1983
- Класс
B
- Раздельных помещений
1
- Материал стен
Кирпичный
- Высота потолков
4 м
- Ремонт
Хороший
- Отопление
Есть
- Электроснабжение
Есть
- Электрическая мощность
10 кВт
- Естественное освещение
Есть
- Вода
Есть
- Санузел
Есть
- Парковка
Есть
- Принадлежность объекта
Частная
- НДС
НДС не включен
- Юридический адрес
Да
- Номер договора
175/2а от 07.10.2025
Оснащение
Оживленное место
Охрана
Видеонаблюдение
Интернет
Недвижимость
Контактное лицо
Примечание
Местоположение
- Область
- Населенный пункт
- Номер дома
84/А
- Район города
- Микрорайон
- Координаты
53.925426142, 27.620305246
