Скачать приложение Realt
Скачать

Просторный офис 756 м² на 4 этаже – Riviera Plaza

40 р./м²

14 $/м²
Аренда
Следить за ценой
Офис

Тип

756 м²

Площадь

4 из 5

Этаж

06.05.2026ID 4012711
pdf
Обзор по коммерческой недвижимости
Сделки, цены и ставки аренды за 2025 год

Описание

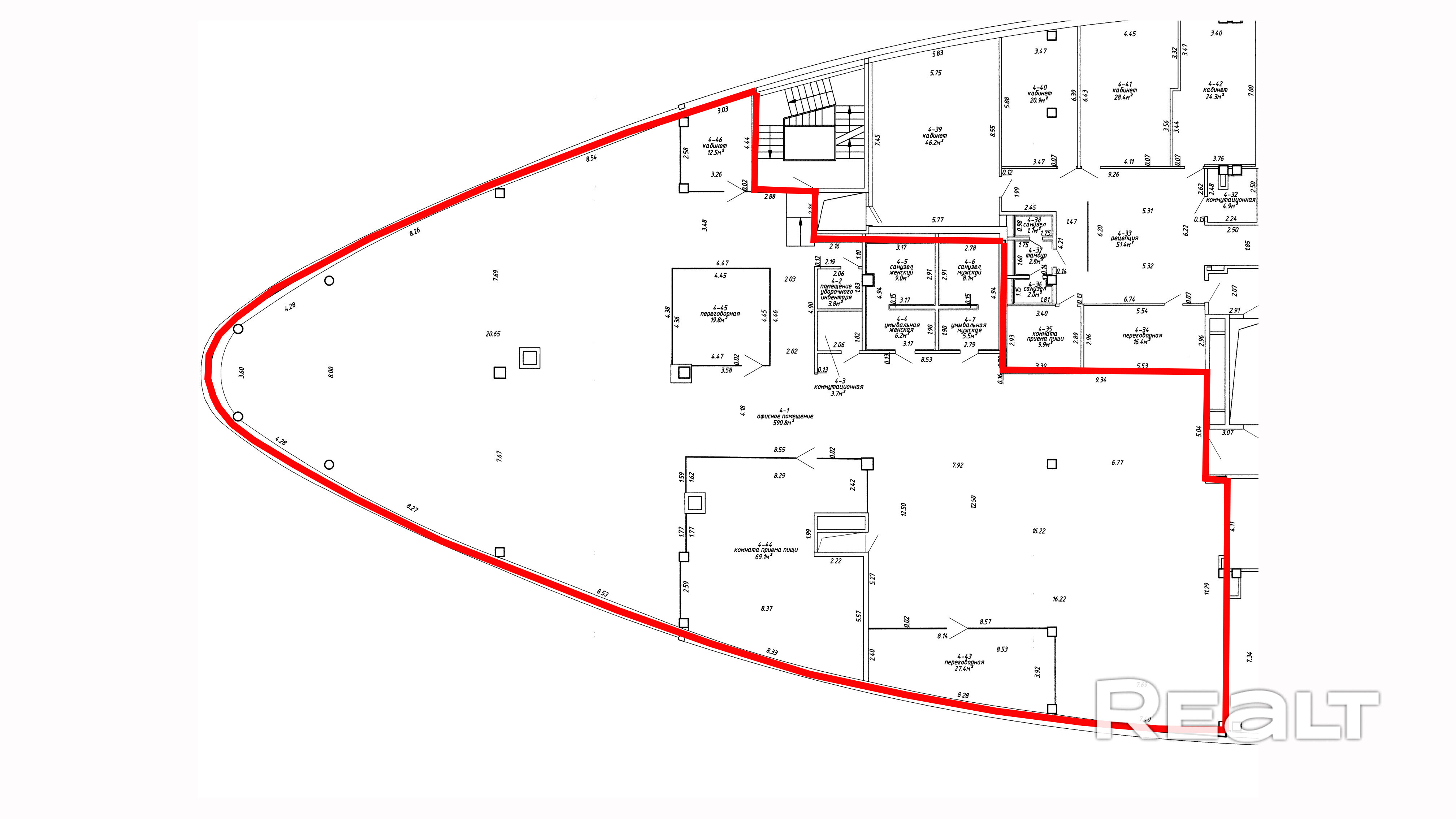
Аренда офиса 756 кв.м. на 4 этаже в многофункциональном комплексе Riviera Plaza .


Помещение сочетает в себе комбинированный формат открытого пространства и отдельных кабинетов с возможностью установки дополнительных перегородок. Высокая степень естественного освещения. Индивидуальная группа раздельных сан узлов. Доступ 24/7. Помещение готово к переезду.

Отделка офиса:
- напольное покрытие: ковролин;
- отделка стен: окрашены;
- потолок типа Loft.

Инженерные системы и коммуникации:
- вентиляция с искусственным и естественным побуждением движения воздуха;
- кондиционирование;
- серверная;
- разведены электрические и слаботочные сети;
- центральное водоснабжение и отопление;
- пожарная сигнализация.

Парковка:
Охраняемая плоскостная парковка у здания;

Транспортное сообщение:
Более десяти маршрутов городского транспорта курсирует в шаговой доступности от здания.

Инфраструктура:
Развитая инфраструктура общественного питания, продуктовых магазинов, сферы услуг, пункты оказания банковских услуг, парк им. Александра Герасименко.

Арендатор не оплачивает услуги агентства.

Result Estate — ваш надёжный партнёр на рынке недвижимости.

20 лет опыта наших агентов по недвижимости — это ваш ключ к идеальной сделке: глубокое знание рынка, эксклюзивные предложения, юридическая безопасность и индивидуальный подход. Мы экономим ваше время, деньги и нервы, помогая купить, продать недвижимость быстро, выгодно и с уверенностью в результате!

Все актуальные предложения в одном месте — смотрите на нашем сайте. 

Опишите свои пожелания — и мы оперативно подберем для вас лучшие варианты!

ООО «Результативная недвижимость», лицензия выдана Минюстом 26.09.2023 № 02240470, УНП 193703497

Связываясь с нами по данному объекту, Вы даете свое согласие на сбор и обработку персональных данных автоматически.

Параметры объекта

  • Тип объекта

    Офис

  • Площадь общая

    756 м²

  • Этаж / этажность

    4 / 5

  • Год постройки

    2018

  • Раздельных помещений

    1

  • Материал стен

    Монолитный

  • Высота потолков

    3 м

  • Ремонт

    Хороший

  • Отопление

    Есть

  • Электроснабжение

    Есть

  • Естественное освещение

    Есть

  • Вода

    Есть

  • Санузел

    Есть

  • Парковка

    Есть

  • Принадлежность объекта

    Частная

  • НДС

    НДС не включен

  • Расположение

    В бизнес центре

  • Номер договора

    13/1а от 19.11.2023

Оснащение

Охрана

Оживленное место

Примечание

Аренда офиса 756 кв.м. на 4 этаже в многофункциональном комплексе Riviera Plaza .

Местоположение