Аренда офиса на ул. Грибоедова, 19
40 р./м²
- г. Минскул. Грибоедова, 19
- Молодежная
- На карте
Тип
Площадь
Этаж
Описание
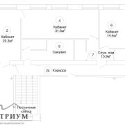
Сдаётся офисный блок в отдельно стоящем здании на 2-м этаже в центре города Минска. Площадь: 80,4 кв.м
Расположение и территория:
· Закрытая территория с пропускной системой - обеспечивает контроль доступа и безопасность сотрудников и посетителей.
· Зелёная зона и тихий район - комфортная рабочая атмосфера, отсутствие шумного трафика.
Характеристики помещения:
· Выполнена отделка - готово к эксплуатации без дополнительных вложений.
· Установлены кондиционеры - поддержание комфортного микроклимата в любое время года.
· Большие окна на солнечной стороне - помещения наполнены естественным светом, что снижает затраты на освещение и создаёт благоприятные условия для работы.
Дополнительные зоны:
· Кухня - возможность организации зоны питания для сотрудников.
· Переговорная - отдельное пространство для встреч с клиентами и партнёрами.
· Гардероб - удобное хранение верхней одежды и личных вещей.
· Архив/серверная - выделенное помещение для хранения документации или размещения IT-оборудования.
Преимущества:
· Функциональная планировка - оптимальное использование площади.
· Круглосуточный доступ - гибкий режим работы без ограничений.
· Отдельное здание - независимость от соседних офисов, возможность брендирования и выделения компании.
Договор № 316/1а от 06.11.2025
ООО Агентство недвижимости «Метриум»
УНП 193581536
Лицензия № 02240/425, выдана Министерством Юстиции РБ 27.08.2021
Параметры объекта
- Тип объекта
Офис
- Площадь общая
80.40 м²
- Этаж / этажность
2 / 2
- Год постройки
1961
- Материал стен
Кирпичный
- Ремонт
Хороший
- Отопление
Есть
- Электроснабжение
Есть
- Естественное освещение
Есть
- Вода
Есть
- Санузел
Есть
- Принадлежность объекта
Частная
- НДС
НДС не включен
- Юридический адрес
Да
- Номер договора
316/1а от 05.11.2025
Агентство недвижимости Метриум
Контактное лицо
Примечание
Местоположение
- Область
- Населенный пункт
- Улица
- Номер дома
19
- Район города
- Координаты
53.9152, 27.5264
