Аренда офиса 95,1 м², пр-т Независимости 44
6 650 р.
70 р.≈ 25 $ за м²
- г. Минскпросп. Независимости, 44
- Площадь Победы
- На карте
Тип
Площадь
Этаж
Описание
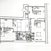
Офисное помещение площадью 95,1 кв.м. со своим входом на 6-м этаже, располагается по адресу: пр-т Независимости 44, 6-й этаж (мансардный этаж).
В помещении выполнен качественный ремонт. Подведены все необходимые коммуникации: центральное отопление, электроснабжение, водоснабжение. Оптоволокно, принудительная вентиляция, пожарная и охранная сигнализация, видеонаблюдение, Wi-fi, 7 телефонных линий.
Отдельный вход обеспечивает доступ в помещение 24/7, есть охрана. Возможна установка рекламных конструкций на фасаде здания.
Локация представляет собой густонаселенный район с хорошо развитой инфраструктурой, хорошее транспортное сообщение (до ст.м. Площадь Победы 1 минута пешком), рядом расположены объекты общественного питания, кафе, торговые объекты, объекты различной сферы услуг, продуктовые магазины.
- офис полностью готов к эксплуатации;
- сдаётся с мебелью;
- электричество, водоснабжение, отопление, кондиционеры, оптоволокно, телефонные линии, Wi-fi;
- отдельный 24/7 вход, охрана.
Арендатор не оплачивает услуги агентства.
Организуем показ в удобное для вас время.
Звоните!
Больше объявлений тут: www.instagram.com/garant.arenda
Напишите нам в удобный для Вас мессенджер:
Viber | Telegram | WhatsApp
Ответим на Ваши вопросы, предоставим всю необходимую дополнительную информацию.
ООО «Артель Недвижимость»
УНП 193820882
Лицензия Министерства Юстиции №48250000081913 06.03.2025 г.
Договор №112/2а от 25.09.2025г.
Параметры объекта
- Тип объекта
Офис
- Площадь общая
95.10 м²
- Этаж / этажность
6 / 6
- Год постройки
1955
- Класс
B
- Раздельных помещений
3
- Материал стен
Кирпичный
- Ремонт
Хороший
- Отопление
Есть
- Электроснабжение
Есть
- Электрическая мощность
220 кВт
- Естественное освещение
Есть
- Вода
Есть
- Санузел
Есть
- Оборудование
Есть
- Количество телефонов
Больше пяти
- Принадлежность объекта
Частная
- НДС
НДС включен
- Юридический адрес
Да
- Номер договора
112/2а от 24.09.2025
Оснащение
Охрана
Сигнализация
Видеонаблюдение
Интернет
Недвижимость
Контактное лицо
Примечание
Местоположение
- Область
- Населенный пункт
- Улица
- Номер дома
44
- Район города
- Микрорайон
- Координаты
53.9113, 27.5793
