Аренда офисных помещений ул. Фабрициуса 8Б к1.
30 р./м²
Аренда
Следить за ценой
- г. Минскул. Фабрициуса, 8/Б
- Институт культуры
- 5 минут
- На карте
Офис
Тип
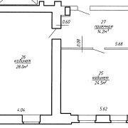
33.40 м²
Площадь
2 из 8
Этаж
16.04.2026ID 3838987
Описание
Аренда офисных помещений ул. Фабрициуса 8Б к1. Разные площади. Пропускная система, пункт охраны, санузлы, кондиционеры., кухня. Центр города, 7 минут до м. Институт культуры.
Современные системы коммуникаций в центре города с доступной локацией и подъездными путями.
Арендатор услуги агентству не оплачивает.
В период с 7 по 19 августа связываться по мессенджерам whatsp, telegram, viber.
Лицензия: 02240/446 МЮ РБ, 11.07.2022
Параметры объекта
- Тип объекта
Офис
- Площадь общая
33.40 м²
- Этаж / этажность
2 / 8
- Раздельных помещений
3
- Материал стен
Кирпичный
- Высота потолков
2.7 м
- Ремонт
Хороший
- Отопление
Есть
- Электроснабжение
Есть
- Естественное освещение
Есть
- Вода
Есть
- Санузел
Есть
- Количество телефонов
1 телефон
- Принадлежность объекта
Частная
- НДС
НДС включен
- Юридический адрес
Да
- Номер договора
23/1А от 05.08.2025
Оснащение
Оживленное место
Примечание
Аренда офисных помещений ул. Фабрициуса 8Б к1. Разные площади. Пропускная система, пункт охраны, санузлы, кондиционеры., кухня. Центр города, 7 минут до м. Институт культуры.
Местоположение
Институт культуры5 минут
- Область
- Населенный пункт
- Улица
- Номер дома
8/Б
- Район города
- Микрорайон
- Координаты
53.8897, 27.5359
