Скачать приложение Realt
Скачать

Аренда офисного помещения в БЦ Prizma 88 м2

от 38 р./м²

от 13 $/м²
Аренда
Следить за ценой
Офис

Тип

80 - 1500 м²

Площадь

5 из 10

Этаж

30.01.2026ID 3611525
pdf
Обзор по коммерческой недвижимости
Сделки, цены и ставки аренды за 2025 год

Описание

Бизнес-центр в составе МФК "Prizma"

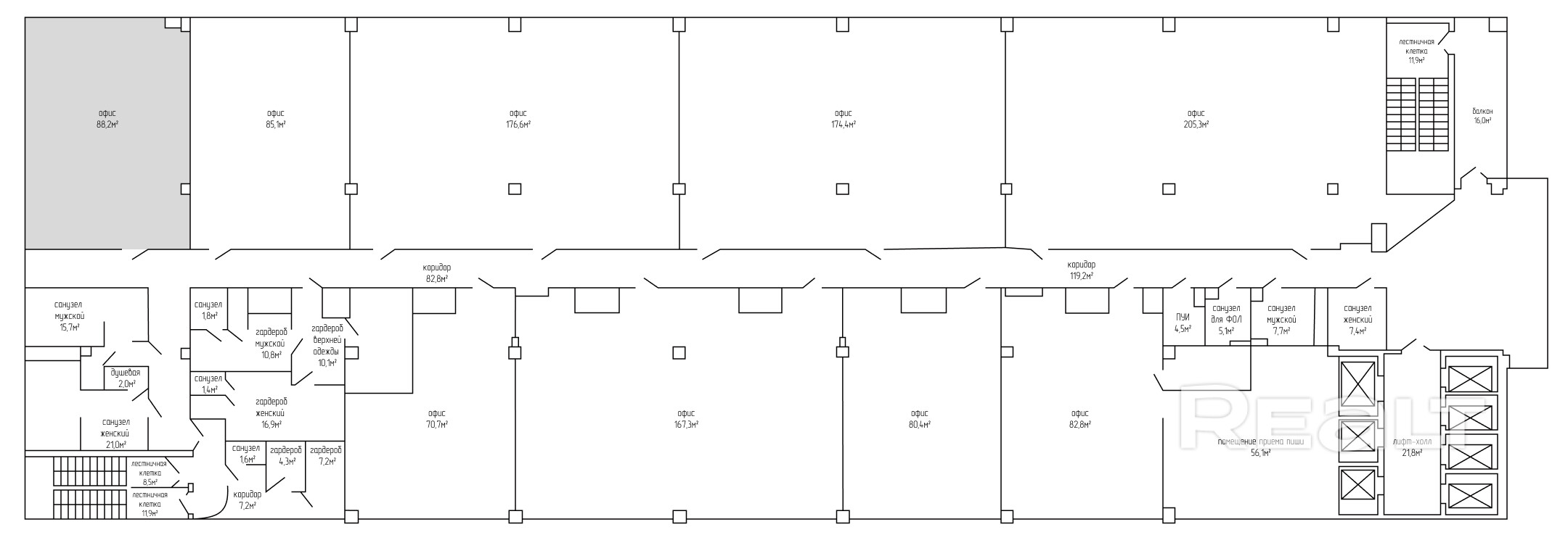
Предоставляет в аренду светлый и просторный офис 88 м2

Предлагаем к аренде также помещения от 80 м2 до 1 900 м

При аренде больших площадей мы предлагаем помощь с планировочным решением БЕСПЛАТНО!

Характеристики бизнес-центра:

  • Общая площадь: 19 000 м2
  • Типовая площадь этажа: 1 900 м2
  • Доступны кабинетные планировки и open space
  • Возможность снять этаж

Особенности кабинетных планировок:

  • Помещения с ремонтом
  • Современные системы кондиционирования и вентиляции
  • Доступные площади:

             Помещение 80 м2

             Помещение 90 м2

             Помещение 174 м2

             Помещение 205 м2

             Помещение 167 м2

 

Особенности планировок open space:

  • Свободные планировки
  • Современные системы кондиционирования и вентиляции
  • Помещения без ремонта
  • Возможность отделки от собственника
  • Доступные площади:

             Площадь 300 м2

             Площадь 500 м2

             Площадь 1000 м2

             Площадь 1900 м2 и более.

Особенности бизнес-центра:

  • Панорамное остекление офисов, высота потолка 3,30 м;
  • 7 скоростных лифтов;
  • Работа ресепшена 24/7,
  • Многоуровневый паркинг на 700 машино-мест;
  • 22 маршрута наземного транспорта
  • Доступ из бизнес-центра в ТРЦ Prizma
  • Рестораны, кафе, банки, обменные пункты, аптеки, салон красоты в ТРЦ Prizma

БЦ Prizma удобно расположен на Партизанском проспекте в непосредственной близости от:

  • ст. метро «Партизанская» (20 метров)
  • Национального футбольного стадиона 
  • Парка им. 50-летия Великого Октября

В едином управлении компании:

  • БЦ «Prizma» - пр-т. Партизанский, 79
  • БЦ «Орлан» - ул. Тиражная, 150
  • БЦ «Фортуна» - ул. Притыцкого, 27а;
  • БЦ «Волна» - пр-т. Партизанский, 178/2;
  • БЦ «Титан» - пр-т. Дзержинского, 104А;
  • БЦ «ТолкПарк» - ул. Толбухина, 3а.

Более подробная информация о наших объектах недвижимости на www.sigmapolus.com

Параметры объекта

  • Тип объекта

    Офис

  • Площадь общая

    80 - 1500 м²

  • Этаж / этажность

    5 / 10

  • Год постройки

    2024

  • Класс

    A

  • Раздельных помещений

    80

  • Материал стен

    Монолитный

  • Высота потолков

    3 м

  • Ремонт

    Без отделки

  • Отопление

    Есть

  • Электроснабжение

    Есть

  • Естественное освещение

    Есть

  • Вода

    Есть

  • Санузел

    Есть

  • Парковка

    Есть

  • Принадлежность объекта

    Частная

  • НДС

    НДС включен

  • Расположение

    В бизнес центре

  • Юридический адрес

    Да

  • Новостройка

    Да

Оснащение

Кондиционер

Охрана

Видеонаблюдение

Оживленное место

Интернет

Арендодатель

Отдел аренды

Контактное лицо

Примечание

Аренда офисных помещений в бизнес-центре Prizma с кабинетными и свободными планировками от 80 м. Ввод в эксплуатацию — 2024 год.

Местоположение