Аренда офиса 148,5 кв. м. в центре г. Минска (метро Институт Культуры)
5 792 р.
39 р.≈ 14 $ за м²
- г. Минскул. Фабрициуса, 8/1 Б
- Институт культуры
- На карте
Тип
Площадь
Этаж
Описание
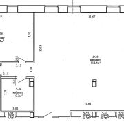
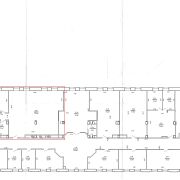
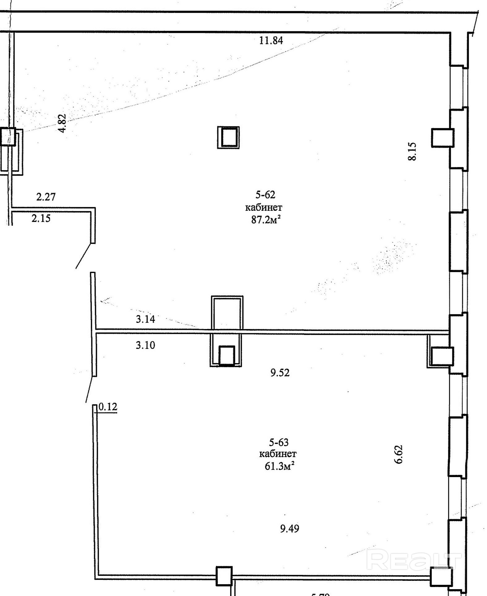
Сдается в аренду офисное помещение площадью 148,5 кв.м. по адресу: г. Минск, ул. Фабрициуса, 8Б, корп. 1 (метро Институт Культуры). Находится на 4 этаже здания.
Кабинетная планировка.
Парковка на прилегающей территории.
Евроремонт, современная отделка, своевременное обслуживание инженерных систем.
Круглосуточная охрана, система контроля и управления доступом (СКУД), видеонаблюдение, компьютерная сеть, скоростной интернет (заведены 5 провайдеров: Белтелеком, Деловая сеть, МТС, Айпителком, Космос ТВ), приточно-вытяжная вентиляция, кондиционирование в каждом помещении, местная телефонная сеть (имеется лицензия на оказание услуг связи).
Лифты (пассажирский и грузовой), 2 санузла на этаже.
В здании находится магазин Fix price, также функционирует кафе.
Развитая инфраструктура. В шаговой доступности магазины (Хит, Соседи, Мегатоп, Мила и др.), различные объекты общественного питания (KFC, Штолле, Cofix, БАР #ПП, столовые государственных предприятий и учреждений: Белмедпреппараты, Метрополитен, Институт культуры), банки (ВТБ, БелВэб), объекты сферы бытовых услуг (Дом быта и др.).
Отличное транспортное сообщение, в 5 минутах ходьбы ст.м. «Институт Культуры», «Вокзальная», «Площадь Франтишка Богушевича».
Арендная плата указана уже с учетом НДС 20%.
В арендную плату включены все эксплуатационные расходы, связанные с обслуживанием здания.
Отдельно подлежат возмещению только фактически потребленные коммунальные услуги (электроэнергия, вода, подогрев воды, отопление в зимний период).
Объявление размещено от собственника, заключение договора аренды происходит напрямую без участия риэлтерских организаций, соответственно, без дополнительных расходов для будущего арендатора.
По всем возникшим вопросам звоните по телефону, указанному в объявлении (пишите в любой из мессенджеров).
Параметры объекта
- Тип объекта
Офис
- Площадь общая
148.50 м²
- Этаж / этажность
4 / 8
- Класс
B
- Материал стен
Монолитный
- Высота потолков
4 м
- Ремонт
Хороший
- Отопление
Есть
- Электроснабжение
Есть
- Естественное освещение
Есть
- Вода
Есть
- Санузел
2 санузла
- Оборудование
Есть
- Количество телефонов
Больше пяти
- Парковка
Есть
- Принадлежность объекта
Частная
- НДС
НДС включен
- Расположение
В бизнес центре
- Юридический адрес
Да
Оснащение
Кондиционер
Охрана
Сигнализация
Видеонаблюдение
Компьютерная сеть
Интернет
Рампа
Отдельный вход
Арендодатель
Сергей
Контактное лицо
Примечание
Местоположение
- Область
- Населенный пункт
- Улица
- Номер дома
8/1 Б
- Район города
- Микрорайон
- Координаты
53.889482614, 27.5365951
