Аренда многофункционального комплекса 803,2 м2 в г. Минске
40 р./м²
- г. Минскул. Смоленская, 15/А
- Пролетарская
- На карте
Тип
Площадь
Этаж
Описание
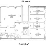
Предлагаем Вашему вниманию многофункциональный производственный комплекс с административными помещениями, общей площадью 803,2 кв. м, расположенный по адресу: г. Минск, ул. Смоленская, 15А.
МФК включает в себя:
- административный блок 397,2 кв. м;
- производственный блок (участок сборки) 406,0 кв. м.
Общие характеристики объекта:
- доступ в здание 24/7;
- помещения располагаются на 3/3 этаже;
- действующий грузовой лифт на 1000 кг;
- имеется собственная парковка под шлагбаумом (кол-во машино-мест обсуждается);
- по периметру здания ведется видеонаблюдение;
- круглосуточная охрана.
Производственный блок (участок сборки):
- высота потолков (до разводки труб) – 4.25 м;
- 220/380В, кол-во кВт выделяется под запрос;
- приточно-вытяжная вентиляция (усиленная);
- система кондиционирования для каждой рабочей зоны;
- заведена вода/канализация;
- отапливаемый;
- высокий уровень естественного и электрического освещения;
- автоматическая система пожаротушения.
Административные блок:
- формат кабинетной системы;
- высота потолков – 2,7 м;
- каждое помещение оборудовано кондиционером;
- действующая приточно-вытяжная вентиляция;
- выделено помещение под комнату хранения оружия;
- выделено помещение под кухню;
- собственные раздельные санузлы, моечные, есть душ.
Сдается единым блоком! При необходимости возможна аренда большей площади!
Цена указана с учетом НДС!
Арендатор не оплачивает услуги агентства.
Звоните прямо сейчас!
Параметры объекта
- Тип объекта
Офис+склад
- Площадь общая
803.20 м²
- Этаж / этажность
3 / 4
- Год постройки
2011
- Раздельных помещений
1 - 10
- Материал стен
Кирпичный
- Высота потолков
2.5 м
- Ремонт
Хороший
- Отопление
Есть
- Электроснабжение
Есть
- Естественное освещение
Есть
- Вода
Горячая
- Санузел
Есть
- Количество телефонов
1 телефон
- Парковка
Есть
- Принадлежность объекта
Частная
- НДС
НДС включен
- Расположение
В бизнес центре
- Юридический адрес
Да
- Номер договора
45/1а от 11.04.2024
Оснащение
Сигнализация
Видеонаблюдение
Владислав Апенок
Агент по недвижимости
Примечание
Местоположение
- Область
- Населенный пункт
- Улица
- Номер дома
15/А
- Район города
- Микрорайон
- Координаты
53.8925, 27.5864
