Офисный блок (355 м²) с бесплатной закрытой парковкой (метро Аэродромная и Ковальская Слобода)
20 р./м²
Тип
Площадь
Этаж
Описание
🏢 Комфортное пространство для вашей команды, где не нужно ломать голову над парковкой.
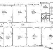
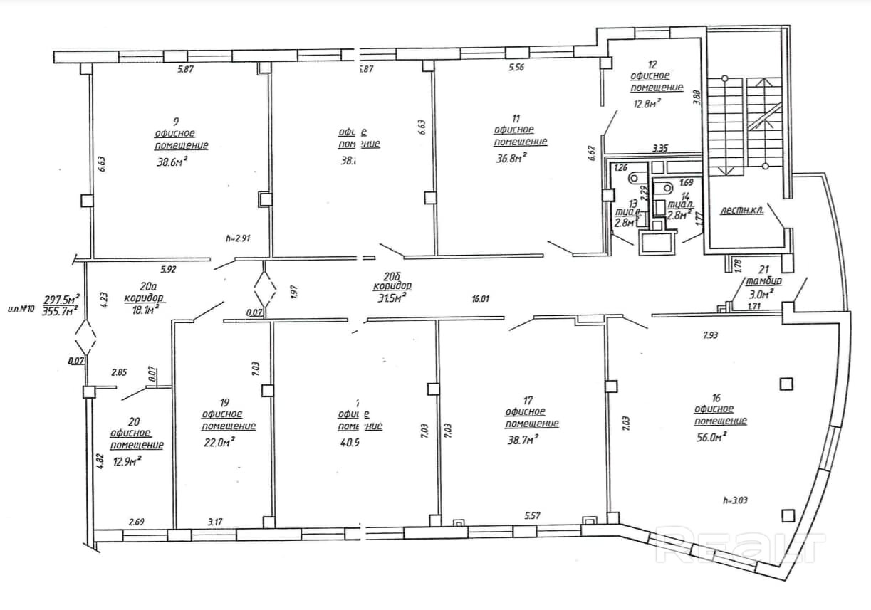
Сдается в долгосрочную аренду изолированный офисный блок с хорошим ремонтом и продуманной планировкой на 5-м этаже современного бизнес-центра (ул. Либаво-Роменская, 23).
🚗 Главный бонус — Парковка: Вам предоставляется бесплатная закрытая парковка под шлагбаумом. Свободные места на ней есть всегда! Ваши сотрудники и клиенты больше не будут тратить время на поиск места для авто.
Офисное пространство и планировка:
-
Площадь 355 м2: Включает 7 светлых рабочих кабинетов разного формата.
-
Мебель: Блок сдается без мебели на рабочих местах (фото с мебелью представлены для понимания объемов помещения). При этом в офисе остается: оборудованная кухня (с техникой, барной стойкой и стульями), а также стойка-ресепшен при входе в блок.
-
Инфраструктура: Два аккуратных санузла прямо в блоке и просторный открытый балкон.
Техническое оснащение и безопасность:
-
Круглосуточный доступ 24/7 — работайте в удобном для вашего бизнеса графике.
-
Круглосуточная охрана и видеонаблюдение 24/7, система контроля доступа (вход только по чип-картам).
-
Современная система кондиционирования и приточно-вытяжной вентиляции.
-
Скоростной интернет (оптоволокно) и разведенная компьютерная сеть.
-
Здание и блок оборудованы элементами безбарьерной среды.
Инфраструктура БЦ:
-
Презентабельное лобби на первом этаже и 3 лифта.
-
Кофейня на первом этаже (возможна доставка еды и кофе прямо в офис). В 300 метрах находится продуктовый магазин.
Условия аренды:
-
Мы нацелены на надежное сотрудничество: рассматриваем арендаторов на максимально долгий срок (минимальный договор аренды — от 1 года).
-
Низкие коммунальные и эксплуатационные платежи.
-
Предоставляем юридический адрес.
-
Обеспечительный платеж (засчитывается в счет оплаты последнего месяца аренды).
-
Арендные каникулы: Предоставляем до 2 недель на комфортный переезд и обустройство вашего нового офиса!
Параметры объекта
- Тип объекта
Офис
- Площадь общая
355 м²
- Этаж / этажность
5 / 9
- Год постройки
2009
- Класс
B
- Раздельных помещений
7
- Материал стен
Монолитный
- Высота потолков
2.7 м
- Ремонт
Хороший
- Отопление
Есть
- Электроснабжение
Есть
- Естественное освещение
Есть
- Вода
Есть
- Газ
Есть
- Санузел
2 санузла
- Оборудование
Есть
- Количество телефонов
5 телефонов
- Парковка
Есть
- Принадлежность объекта
Частная
- НДС
НДС нет (0%)
- Расположение
В бизнес центре
- Юридический адрес
Да
Оснащение
Кондиционер
Охрана
Сигнализация
Видеонаблюдение
Компьютерная сеть
Интернет
Арендодатель
Алексей
Контактное лицо
Примечание
Местоположение
- Область
- Населенный пункт
- Улица
- Номер дома
23
- Район города
- Микрорайон
- Координаты
53.87106, 27.562768
