Снять 1-комнатную квартиру, д. Копище, ул. Миля, 2 (Минский р-н, Минская область)
1 268 р./мес.
Срок аренды: длительный
Следить за ценой
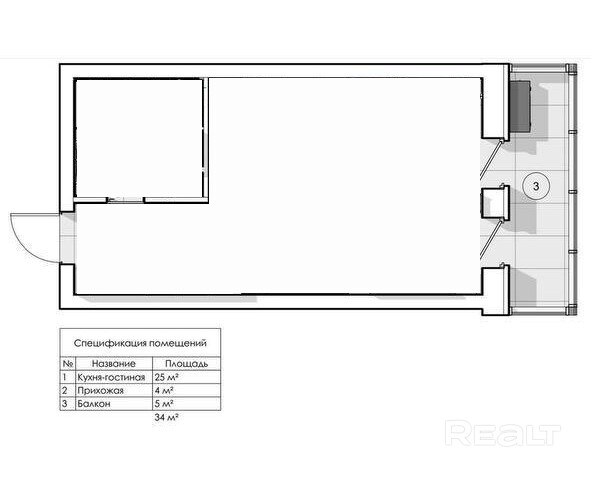
37 м²
Общая
37 м²
Жилая
4 из 7
Этаж
23.04.2026ID 3514888
Параметры объекта
- Количество комнат
1
- Площадь общая
37 м²
- Площадь жилая
37 м²
- Этаж / этажность
4 / 7
- Балкон
Лоджия
- Ремонт
Евроремонт
- Мебель
Есть
- Предоплата
2 месяца
- Квартплата
100%
- Срок аренды
Длительный
Удобства
Видеодомофон
Плита
Арендодатель
Влад
Контактное лицо
Примечание
Новая квартира, до этого никому не сдавалась. Качественная техника и мебель С животными нельзя
Местоположение
- Область
- Район
- Населенный пункт
- Улица
- Номер дома
2
- Сельсовет
Боровлянский с/с
- Направление
Московское, 4 км от МКАД
- Координаты
53.957376, 27.660511
