Комфорт и уют - квартира с отличным ремонтом!
535 252 р.
4 177 р.≈ 1 482 $ за м²
Чистая продажа
Следить за ценой
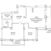
128.1 м²
Общая
84 м²
Жилая
12 м²
Кухня
10 из 14
Этаж
23.04.2026ID 4046523
Описание
- О вашей будущей квартире:
- В квартире выполнен ремонт с использованием импортных качественных материалов. Полностью выравнивалась стяжка пола, а также выравнивались все стены и полотки. Полностью менялась электрика на Медную, отдельно стоят автоматы на каждую линию отдельно. Вся сантехника немецкая.
- Стены облицованы декоративной штукатуркой, а на полу уложен керамогранит. В санузле и гардеробной пол с подогревом, что делает их более комфортными для пользования. В санузле установлена инсталляция, а также гигиенический душ. Установлен бойлер на 50л. Вся ванная облицована Итальянской плиткой.
- Вся кухня Итальянского производства сделанная из массива Ясеня со всей встроенной техникой Bosch: (посудомоечная машина 45, индукционная варочная панель, духовой шкаф, вытяжка, встроенный холодильник, а также встроенная микроволновая печь). Вся кухня с доводчиками Blum.
- В жилых комнатах уложена Паркетная доска высокого уровня прочности. Прекрасным дополнением являются 2 установленных кондиционера (один в спальне, один в Зале). Межкомнатные двери - массив. Квартира находится под охранной сигнализацией.
- Отличный вид: Из окон открывается прекрасный вид, который подарит вам ощущение простора и вдохновения каждый день.
Отличный вариант для тех, кто ценит удобство, функциональность и красивую панораму. Лоджии утеплены, стеклопакеты заменены на более новые с качественной фурнитурой.
- Тип дома - каркасно-блочный, что говорит о его повышенной тепло- и шумоизоляции. В доме 2 лифта - пассажирский и грузовой. Тихие и приветливые соседи. Рядом с домом обустроенная детская площадка, большая парковка.
- В шаговой доступности несколько магазинов, школа, детские сады, остановка общественного транспорта и многое другое, что необходимо для комфортного проживания.
Это отличный вариант для тех, кто ценит комфорт, спокойствие и удобство городской жизни. Готовы организовать просмотр в удобное для вас время — Звоните!
Частное предприятие «Агентство АС недвижимости», УНП 193816797, лицензия №02240/495 от 08.01.2025. Договор №314/1 от 22.08.2025
Параметры объекта
- Количество комнат
3
- Раздельных комнат
2
- Площадь общая
128.1 м²
- Площадь жилая
84 м²
- Площадь кухни
12 м²
- Год постройки
2016
- Этаж / этажность
10 / 14
- Тип дома
Каркасно-блочный
- Балкон
Лоджия
- Ремонт
Отличный
- Мебель
Есть
- Санузел
Совмещенный
- Стоянка автомобиля
Есть
- Собственность
Частная
- Условия продажи
Чистая продажа
- Номер договора
314/1 от 21.08.2025
- Вид из окон
Во двор
Удобства
Телефонная сеть
Интернет
Лифт
Видеонаблюдение
Примечание
Мы гарантируем полное сопровождение сделки, юридическую чистоту и поддержку на всех этапах покупки. Обращайтесь к нам — мы сделаем процесс покупки максимально простым и безопасным.
Местоположение
- Область
- Район
- Населенный пункт
- Улица
- Номер дома
6/А
- Район города
- Координаты
53.8997, 30.361
