Купить 3-комнатную квартиру, г. Бобруйск, просп. Строителей, 44
132 474 р.
1 953 р.≈ 693 $ за м²
Чистая продажа
Следить за ценой
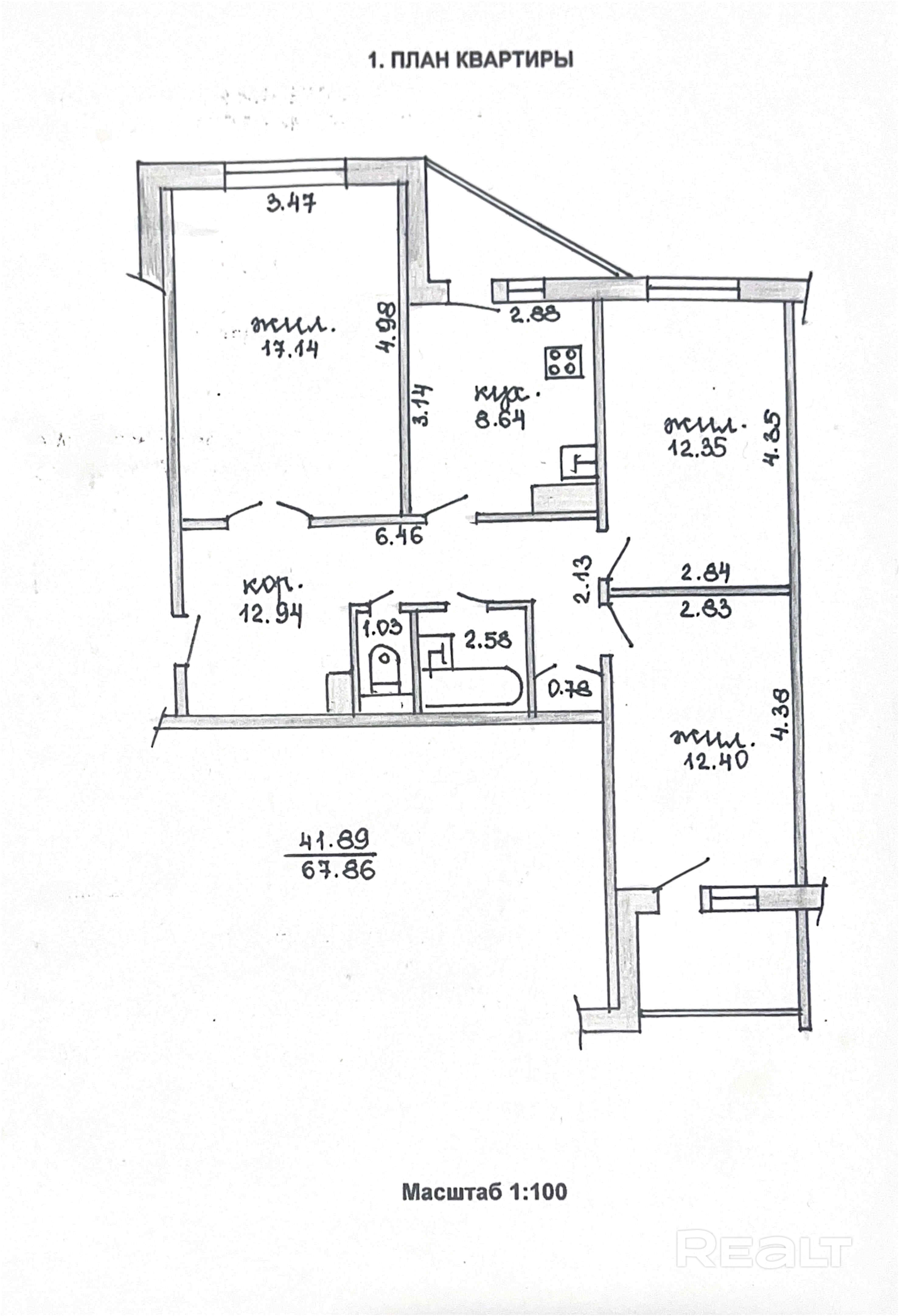
67.86 м²
Общая
41.89 м²
Жилая
8.64 м²
Кухня
4 из 9
Этаж
01.02.2026ID 4004252
Параметры объекта
- Количество комнат
3
- Раздельных комнат
3
- Площадь общая
67.86 м²
- Площадь жилая
41.89 м²
- Площадь кухни
8.64 м²
- Площадь по СНБ
71.12 м²
- Год постройки
1993
- Этаж / этажность
4 / 9
- Тип дома
Панельный
- Балкон
Балкон и лоджия
- Ремонт
Нормальный
- Высота потолков
2.7 м
- Санузел
Раздельный
- Собственность
Частная
- Условия продажи
Чистая продажа
- Вид из окон
Во двор, На улицу
Продавец
Дмитрий
Контактное лицо
Примечание
Трёхкомнатная квартира на проспекте Строителей, дом 44. Квартира не угловая, не на первом и не на последнем этаже. Комнаты на обе стороны дома. Общая площадь квартиры - 67,86 кв.м. (по СНБ-71,12 кв.м.), жилая площадь - 41,89 кв.м. позволяет легко расставить мебель и организовать пространство по своему вкусу. В шаговой доступности - супермаркеты, поликлиника, кафе, рынок «Северный», детский сад и школы. Возле дома остановки общественного транспорта с хорошим сообщением.
Местоположение
- Область
- Район
- Населенный пункт
- Улица
- Номер дома
44
- Координаты
53.1897, 29.2253
