Купить склад, д. Ковердяки (Брестский р-н, Брестская область)
2 953 800 р.
Тип
Площадь
Описание
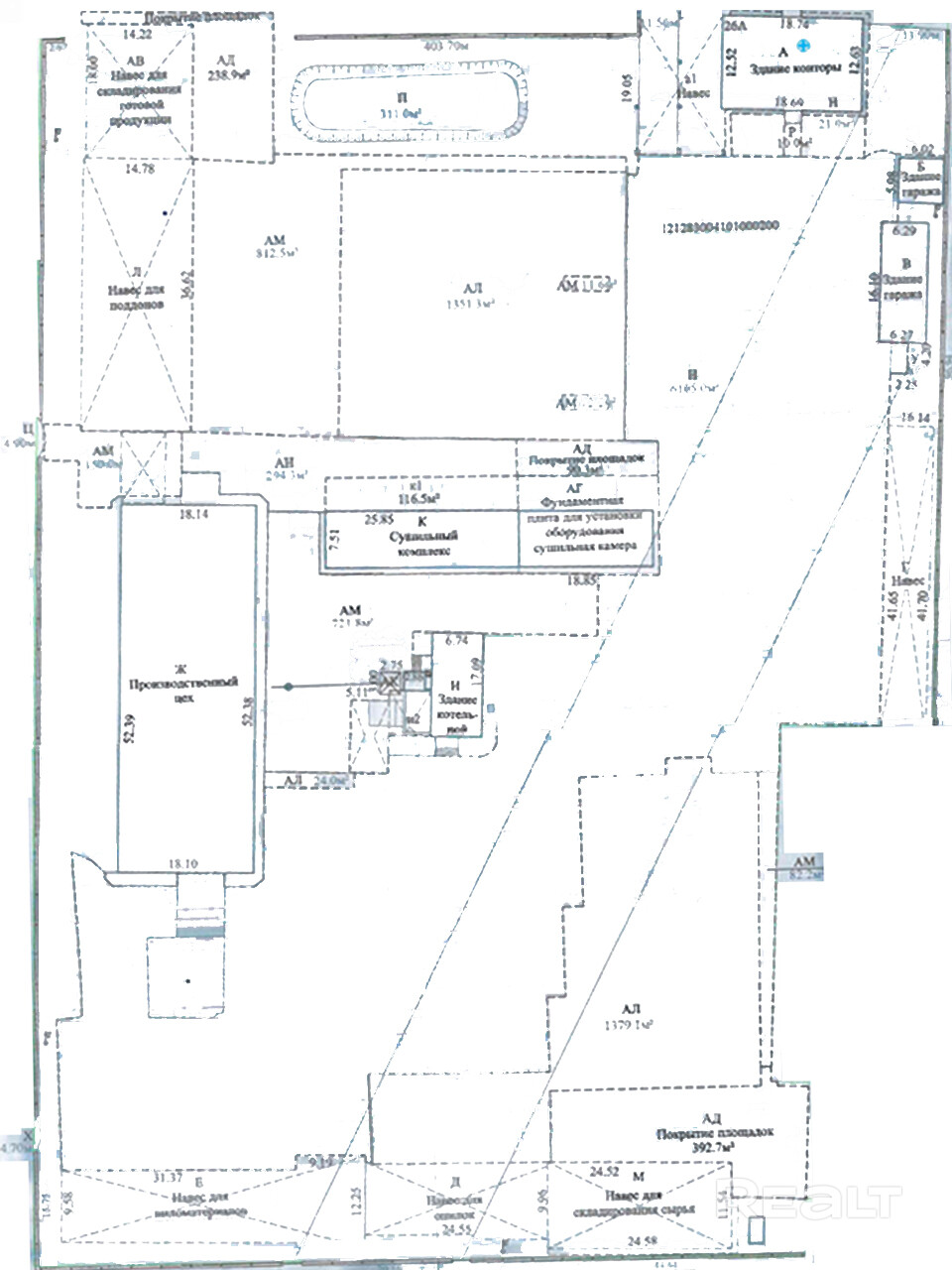
Предлагаем уникальная возможность продажи готовый торгово-производственный комплекс.
Основные характеристики объекта:
- Административно-бытовой корпус (АБК): 340 м2
- Отапливаемый, утеплённый, производственный цех: 970 м2
- Котельная: 90 м2
- Навесы общей площадью: 2500 м³
- Гаражи: 130 м2.
Преимущества расположения:
- Удобная транспортная доступность — всего в 5 километрах от городской черты, 2 километра от трассы М1 и 7 километров от международного пограничного перехода Козловичи.
- Возможность быстрого развития бизнеса, благодаря удобной логистике и близости крупных транспортных магистралей. Электроэнергия и коммуникации:
- Собственная комплектная трансформаторная подстанция (КТП), обеспечивающая мощность 400 кВт.
- Полностью подведены все необходимые инженерные сети: электричество, вода, канализация, отопление.
Комфорт и удобство эксплуатации:
- Просторные помещения позволяют организовать производство, складские площади, паркинг автомобилей и прочие объекты инфраструктуры.
- Комфортабельный офис позволит эффективно управлять бизнесом прямо на месте.
Общая площадь земельного участка (огорожен по периметру, асфальтирован, оборудован удобный заезд) составляет 1.96 гектара, предоставляя широкие возможности для дальнейшего развития и расширения вашего дела!
Идеальное решение для тех, кто ценит качество, комфорт и выгодное расположение своего предприятия.
Result Estate — ваш надёжный партнёр на рынке недвижимости.
20 лет опыта наших агентов по недвижимости — это ваш ключ к идеальной сделке: глубокое знание рынка, эксклюзивные предложения, юридическая безопасность и индивидуальный подход. Мы экономим ваше время, деньги и нервы, помогая купить, продать недвижимость быстро, выгодно и с уверенностью в результате!
Все актуальные предложения в одном месте — смотрите на нашем сайте.
Опишите свои пожелания — и мы оперативно подберем для вас лучшие варианты!
ООО «Результативная недвижимость», лицензия выдана Минюстом 26.09.2023 № 02240470, УНП 193703497
Связываясь с нами по данному объекту, Вы даете свое согласие на сбор и обработку персональных данных автоматически.
Параметры объекта
- Тип объекта
Склад
- Площадь общая
16823.70 м²
- Ремонт
Хороший
- Отопление
Есть
- Электроснабжение
Есть
- Естественное освещение
Есть
- Вода
Есть
- Санузел
2 санузла
- Парковка
Есть
- Принадлежность объекта
Частная
- Номер договора
19/4 от 01.03.2026
Оснащение
Рампа
Примечание
Местоположение
- Область
- Район
- Населенный пункт
- Сельсовет
Мотыкальский с/с
- Координаты
52.175368, 23.666889
