Купить помещение, г. Брест, ул. Гоголя
374 874 р.
Тип
Площадь
Этаж
Описание
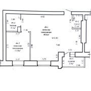
Продаётся уникальное нежилое помещение в центре Бреста!
Ищете идеальное место для своего бизнеса? У нас есть отличное предложение! Продаётся уникальное помещение нежилого фонда по адресу: улица Гоголя, в самом сердце города Бреста.
Основные характеристики:
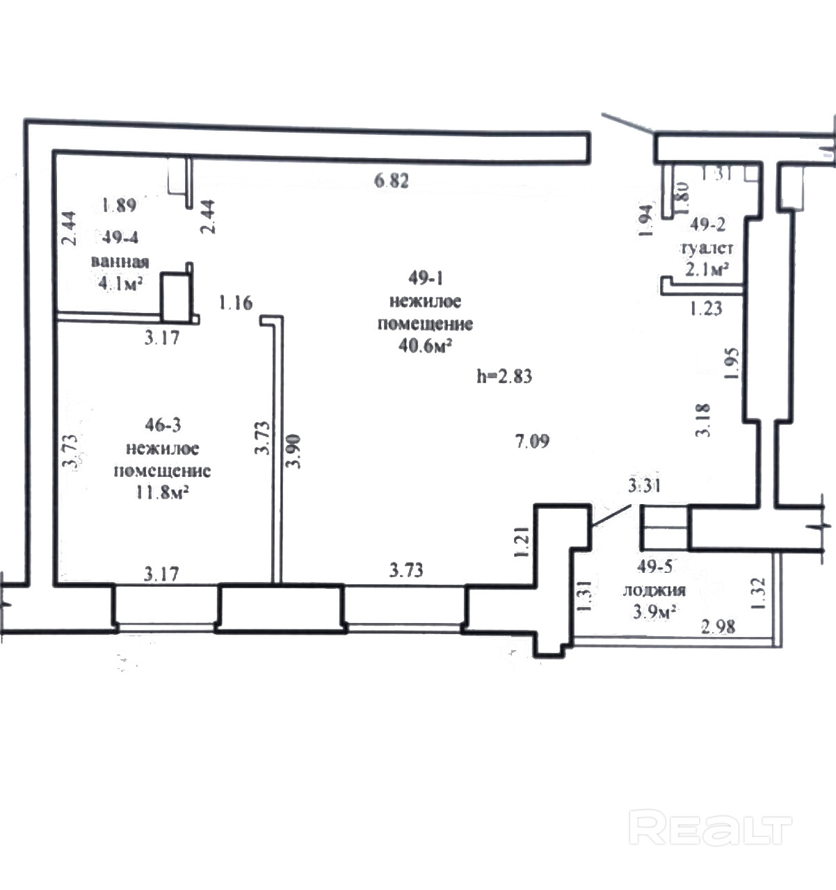
• Площадь: 62,5 м2
• Этаж: 1-й этаж 9-этажного кирпичного дома, построенного в 2023 году
Помещение имеет свой отдельный вход, что обеспечивает удобный доступ для клиентов и сотрудников.Помещение не относятся к жилищному фонду, что открывает широкие возможности для перепрофилирования под различные виды деятельности: от торговли и офисов до сферы услуг.
Новый дом, качественная постройка и продуманные планировки обеспечивают комфортные условия для работы.
• Удобное месторасположение: Центр города — это всегда высокий трафик и видимость вашего бизнеса. Вы будете в окружении других успешных компаний, что привлечет дополнительных клиентов.
Наличие парковочных мест перед домом добавляет удобства как для вас, так и для ваших клиентов.
Не упустите шанс стать владельцем помещения в престижном районе города! Звоните прямо сейчас, чтобы узнать больше и организовать просмотр!
Result Estate — ваш надёжный партнёр на рынке недвижимости.
20 лет опыта наших агентов по недвижимости — это ваш ключ к идеальной сделке: глубокое знание рынка, эксклюзивные предложения, юридическая безопасность и индивидуальный подход. Мы экономим ваше время, деньги и нервы, помогая купить, продать недвижимость быстро, выгодно и с уверенностью в результате!
Все актуальные предложения в одном месте — смотрите на нашем сайте.
ООО «Результативная недвижимость», лицензия выдана Минюстом 26.09.2023 № 02240470, УНП 193703497
Параметры объекта
- Тип объекта
Помещение
- Площадь общая
62.50 м²
- Этаж
1
- Раздельных помещений
2
- Материал стен
Кирпичный
- Отопление
Есть
- Электроснабжение
Есть
- Естественное освещение
Есть
- Вода
Есть
- Санузел
Есть
- Принадлежность объекта
Частная
- НДС
НДС не включен
- Расположение
В жилом доме
- Номер договора
4/2 от 12.01.2026
Примечание
Местоположение
- Область
- Район
Брестский район
- Населенный пункт
- Улица
- Район города
- Координаты
52.09205, 23.689841
