Дом аг. Новосёлки
18 321 р.
Тип
Участок
Общая
Жилая
Описание
Продается дом в аг. Новосёлки с хорошей инфраструктурой, в 19 км от г. Барановичи (12 км от г. Ляховичи).
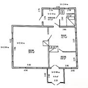
Дом общей площадью по СНБ – 63.5 м2, общая жилая - 59.1 м2, жилая - 37.7 м2 , просторная кухня – 12,7 м2, погреб, кладовое помещение можно переоборудовать под с/у.
Коммуникации:
* Электричество;
* Колодец (есть водопровод для подключения воды с улицы);
* Газопровод (подключение с улицы).
* С/у на улице.
Состояние дома хорошее, подходит для постоянного проживания и на время дачного сезона.
Участок составляет 50 соток , 25 из них – в аренде, назначение - огородничество. На участке с домом расположены хоз. постройки кирпичные и деревянные, плодовые деревья и кустарники.
Агрогородок жилой, с хорошей инфраструктурой и транспортным сообщением: есть школа, садик, почта , банк, парикмахерская, магазины, амбулатория, клуб и библиотека.
Курсируют автобусы №245 (вт, чт), №219 (ежедневно каждые 6 часов). Уточнить информацию о доме Вы можете по телефону, указанному в объявлении.
Параметры объекта
- Тип объекта
Дом
- Площадь участка
50 соток
- Площадь общая
59.1 м²
- Площадь жилая
37.7 м²
- Отопление
Печное
- Канализация
С/у на улице
- Электроснабжение
Есть
- Вода
Колодец
- Статус земли
Аренда
- Условия продажи
Чистая продажа
- Номер договора
131/9 от 25.02.2025
Примечание
Местоположение
- Область
- Район
- Населенный пункт
- Улица
- Сельсовет
Новосёлковский с/с
- Координаты
53.125762593, 26.286482155


