Снять склад, г. Брест, ул. Писателя Смирнова
16 р./м²
Тип
Площадь
Описание
Производственно-складское помещение в Аренду г Брест.
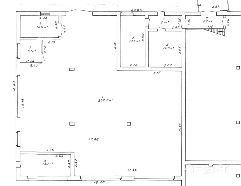
Общей площадью 237.8 кв.м., специализированное иного назначения в комплексе других строений.
Коммуникации:
Отопление (возможность подключения котельной, газ), электроснабжение - 220В/380В.,
водоснабжение - централизованное,
водоотведение - централизованное.
Кран - Балка внутри помещения.
Две входных группы.
Стены - кирпич, Окна, двери - ПВХ.
Рядом есть два помещения 14,5/15.3 м.кв возможность соединения с производственным помещением.
Без НДС.
Расположение здания в комплексе других строений рядом с другими арендаторами, позволяет осуществлять подъезд большегрузных автомобилей вокруг здания, что удобно для выгрузки-загрузки, удобные подъездные пути, асфальтированный подъезд.
Так же могут быть предоставлены дополнительно в аренду - офисные и складские помещения.
Result Estate — ваш надёжный партнёр на рынке недвижимости.
20 лет опыта наших агентов по недвижимости — это ваш ключ к идеальной сделке: глубокое знание рынка, эксклюзивные предложения, юридическая безопасность и индивидуальный подход. Мы экономим ваше время, деньги и нервы, помогая купить, продать недвижимость быстро, выгодно и с уверенностью в результате!
Все актуальные предложения в одном месте — смотрите на нашем сайте.
Опишите свои пожелания — и мы оперативно подберем для вас лучшие варианты!
ООО «Результативная недвижимость», лицензия выдана Минюстом 26.09.2023 № 02240470, УНП 193703497
Параметры объекта
- Тип объекта
Склад
- Площадь общая
237.80 м²
- Отопление
Есть
- Электроснабжение
Есть
- Естественное освещение
Есть
- Вода
Есть
- Газ
Есть
- Парковка
Есть
- НДС
НДС не включен
- Номер договора
14/4а от 03.03.2026
Примечание
Местоположение
- Область
- Район
- Населенный пункт
- Район города
- Координаты
52.115338, 23.636624
