Снять производство, г. Брест, ул. Поплавского, 23
от 7 р./м²
Тип
Площадь
Описание
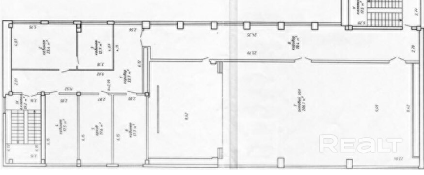
Помещения от 15 до 703 м2 на ул. Поплавского, 23 — под офис, склад или производство.
Часть помещений с ремонтом, другие можно подготовить под задачу. Удобное расположение, район путепровода «Западный обход».
Что сдаётся:
– Склады
– Офисы
– Производственные помещения — как под швейное или полиграфию, так и под мебель или сборку, фасовку, автомастерские, хранение и т.д.
– Мастерские, сервисные помещения
– Комбинированные блоки
Особенности:
– Электричество, вода, санузлы
– Без отопления
– Своя парковка
– Заезд транспорта, включая фуры, с разворотом
– Закрытая территория
– Возможен круглосуточный доступ
– Парковка
Result Estate — ваш надёжный партнёр на рынке недвижимости.
20 лет опыта наших агентов по недвижимости — это ваш ключ к идеальной сделке: глубокое знание рынка, эксклюзивные предложения, юридическая безопасность и индивидуальный подход. Мы экономим ваше время, деньги и нервы, помогая купить, продать недвижимость быстро, выгодно и с уверенностью в результате!
Все актуальные предложения в одном месте — смотрите на нашем сайте.
ООО «Результативная недвижимость», лицензия выдана Минюстом 26.09.2023 № 02240470, УНП 193703497
Связываясь с нами по данному объекту, Вы даете свое согласие на сбор и обработку персональных данных автоматически.
Параметры объекта
- Тип объекта
Производство
- Площадь общая
15 - 703 м²
- Отопление
Есть
- Электроснабжение
Есть
- Естественное освещение
Есть
- Вода
Есть
- Газ
Есть
- Санузел
Есть
- Парковка
Есть
- Принадлежность объекта
Частная
- НДС
НДС включен
- Номер договора
5/4а от 22.02.2026
Оснащение
Оживленное место
Видеонаблюдение
Охрана
Сергей Вожейко
Агент по недвижимости
Примечание
Местоположение
- Область
- Район
- Населенный пункт
- Улица
- Номер дома
23
- Район города
- Координаты
52.097610435, 23.6623822
