Снять офис, г. Брест, ул. Советская
от 23 р./м²
Тип
Площадь
Описание
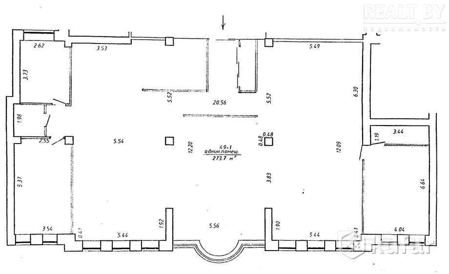
Помещение расположено в торгово-офисном центре повышенной комфортности, разделено на большой openspace и кабинеты.
Выполнен хороший ремонт.
Окна выходят на улицу Советскую.
Установлена система приточно-вытяжной вентиляции, оборудованы комната приема пищи, собственная серверная, проведено оптоволокно.
Главная, пешеходная улица города, с высоким пешеходным трафиком.
Два входа в здание позволяет без проблем произвести выгрузку товара.
Для арендаторов предусмотрена индивидуальная, закрытая парковка.
На данный момент здание на 90% заполнено арендаторами различных сфер деятельности.
Отличный вариант аренды для Вашего бизнеса.
Звоните! Организуем показ в удобное для Вас время.
Result Estate — ваш надёжный партнёр на рынке недвижимости.
20 лет опыта наших агентов по недвижимости — это ваш ключ к идеальной сделке: глубокое знание рынка, эксклюзивные предложения, юридическая безопасность и индивидуальный подход. Мы экономим ваше время, деньги и нервы, помогая купить, продать недвижимость быстро, выгодно и с уверенностью в результате!
Все актуальные предложения в одном месте — смотрите на нашем сайте.
Опишите свои пожелания — и мы оперативно подберем для вас лучшие варианты!
ООО «Результативная недвижимость», лицензия выдана Минюстом 26.09.2023 № 02240470, УНП 193703497
Связываясь с нами по данному объекту, Вы даете свое согласие на сбор и обработку персональных данных автоматически.
Параметры объекта
- Тип объекта
Офис
- Площадь общая
273.70 м²
- Раздельных помещений
1 - 6
- Ремонт
Хороший
- Электроснабжение
Есть
- Принадлежность объекта
Частная
- НДС
НДС включен
- Номер договора
14/2а от 18.02.2025
Оснащение
Оживленное место
Примечание
Местоположение
- Область
- Район
Брестский район
- Населенный пункт
- Улица
- Район города
- Координаты
52.091861, 23.693488
