Продается Производственно-складской комплекс 1261 м² в 11 км от Минска, д. Юхновка, ул. Луговая
1 685 516 р.
1 337 р.≈ 472 $ за м²
Тип
Площадь
Этаж
Описание
Продается готовый объект для вашего бизнеса — производственная база с отличной логистикой и автономными коммуникациями.
Основные характеристики:
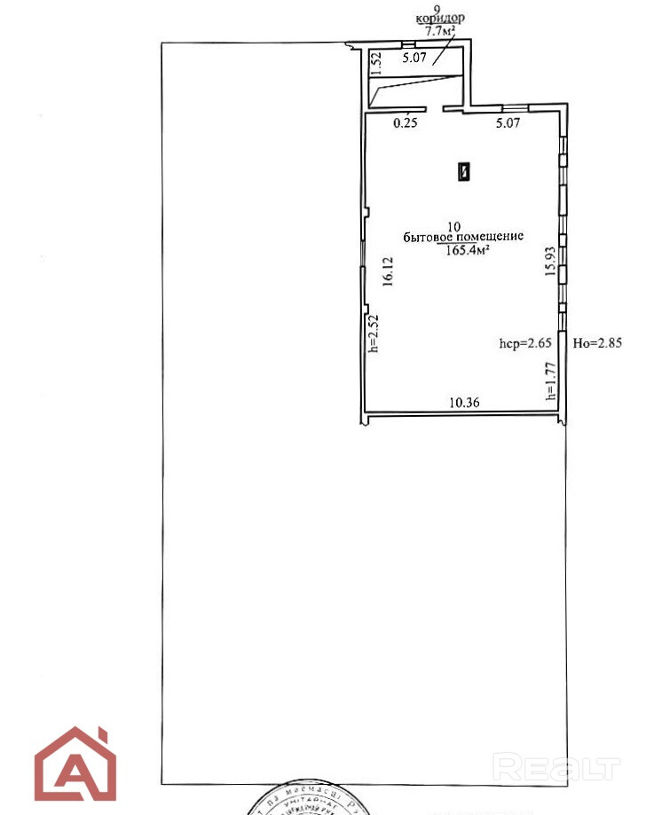
• Два отдельно стоящих здания: 932.7 м2 и 328.9 м2.
• Офисный блок: 165 м2
• Земельный участок: 68 соток (территория полностью огорожена).
Инженерные решения и логистика:
• Отопление: Собственная газовая котельная.
• Водоснабжение: Промышленная скважина со всеми разрешительными документами.
• Высота потолков: До 5 метров
• Транспорт: 2 независимых въезда на территорию, отличные подъездные пути для большегрузного транспорта. Расстояние до МКАД — всего 11 км.
Преимущества:
Объект обладает высоким потенциалом для расширения: на территории есть место для строительства еще одного корпуса.
Консультация эксперта по выбору недвижимости для жизни или инвестирования.
Забронируем нужный вариант на время продажи и продадим вашу недвижимость по лучшей рыночной стоимости.
Получите экспертную оценку своей недвижимости, просто позвонив нам.
Не дозвонились? Напишите нам в Viber, WhatsApp, Telegram.
Площадь указана по СНБ.
Абсолют Недвижимость УНП 193547698.
Лицензия 02240/416 выд. Минюст. РБ, 16.06.2021г.
Параметры объекта
- Тип объекта
Склад
- Площадь участка
68.06 соток
- Площадь общая
1261.60 м²
- Этаж / этажность
1 / 1
- Год постройки
2001
- Раздельных помещений
10 - 15
- Материал стен
Кирпичный
- Высота потолков
4 м
- Ремонт
Хороший
- Отопление
Есть
- Электроснабжение
Есть
- Естественное освещение
Есть
- Вода
Есть
- Газ
Есть
- Санузел
Есть
- Количество телефонов
Больше пяти
- Парковка
Есть
- Принадлежность объекта
Частная
- НДС
НДС нет (0%)
- Юридический адрес
Да
- Номер договора
36/1 от 19.02.2026
Оснащение
Интернет
Отдельный вход
Примечание
Местоположение
- Область
- Район
- Населенный пункт
- Улица
- Номер дома
8
- Сельсовет
Колодищанский с/с
- Направление
Московское, 11 км от МКАД
- Координаты
53.9715, 27.8588
