Продажа здания (склад+офис) на улице Железнодорожная
1 657 164 р.
1 753 р.≈ 625 $ за м²
Тип
Площадь
Этаж
Описание
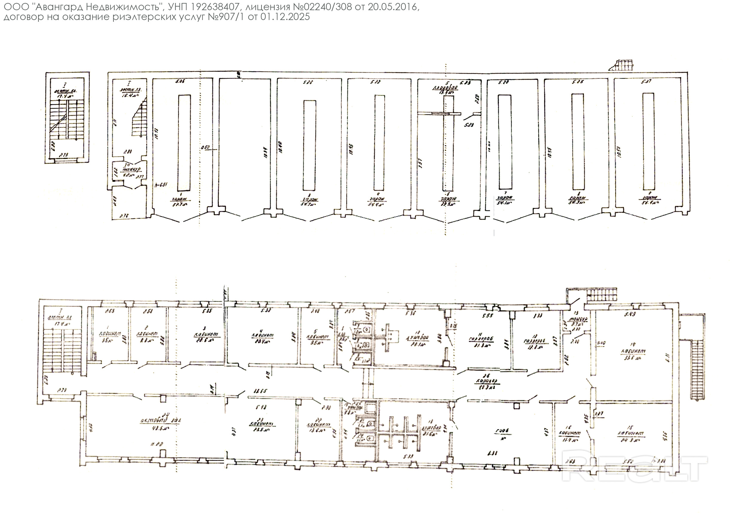
Предлагаем Вашему вниманию рентабельный вариант ведения бизнеса — двухэтажное здание с действующими арендаторами. Здание представляет собой два этажа, представленных складскими секциями на первом, и офисной частью на втором этаже. Также возможна организация производства различного направления, возможно увеличение электрической мощности, а также возможно строительство на прилегающем земельном участке.
- Общая площадь здания составляет 945.3 м2, из них 421,7 м2 складские площади и 385.85 м2 офисы — сдано в аренду на 100%;
- Здание оснащено собственной пеллетной котельной;
- Собственная парковка;
- Большая доля в земельном участке;
- Ж/д тупик вдоль здания;
- Более 100 кВт с возможностью увеличения;
- Назначение — многофункциональное здание;
- Охраняемый объект, видеонаблюдение, сигнализация;
- 2 отдельных входа;
Месторасположение:
Объект расположен в шаговой доступности от ст.м. Михалова, в трёх минутах на авто от центра города, удобный выезд на МКАД; в пешей доступности несколько кафе и магазинов, ТЦ «Глобо», паркинг.
Звоните, покажем в удобное для Вас время!
Параметры объекта
- Тип объекта
Склад
- Площадь общая
945.50 м²
- Этаж / этажность
1 / 2
- Год постройки
1990
- Класс
C
- Раздельных помещений
38
- Материал стен
Кирпичный
- Ремонт
Хороший
- Отопление
Есть
- Электроснабжение
Есть
- Электрическая мощность
100 кВт
- Естественное освещение
Есть
- Вода
Есть
- Санузел
Есть
- Количество телефонов
1 телефон
- Парковка
Есть
- Принадлежность объекта
Частная
- НДС
НДС не включен
- Юридический адрес
Да
- Номер договора
907/1 от 30.11.2025
Оснащение
Кондиционер
Охрана
Сигнализация
Видеонаблюдение
Интернет
Отдельный вход
Примечание
Местоположение
- Область
- Населенный пункт
- Улица
- Номер дома
37/1
- Район города
- Микрорайон
- Координаты
53.8703, 27.5016
