Помещение 65,5 м2 в ЖК «Клевер Парк», г.Минск, ул.Академика Купревича, дом 16 для бизнеса!
от 422 790 р.
Тип
Площадь
Этаж
Описание
Продаётся изолированное помещение 65,5 м2 в Жилом Комплексе «Клевер Парк», г.Минск, ул.Академика Купревича, дом 16! Приглашаем на просмотр! Торг!
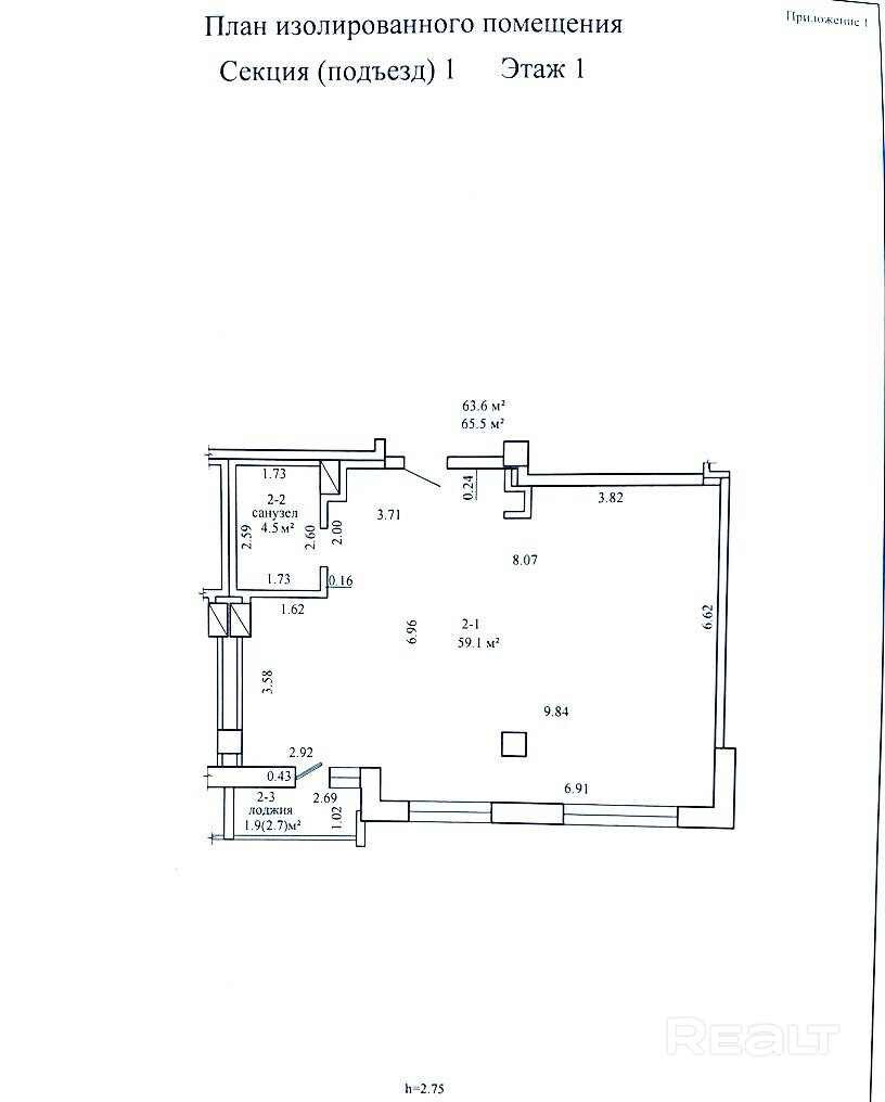
Общая площадь помещения по СНБ - 65,5 м2; высота потолков 2,75 м; 1/16 этаж; Вам не придётся ожидать окончания строительства так как Дом уже возведён, принят в эксплуатацию 2025 года, ключи и документы на руках! Не придётся переплачивать за чужой ремонт так как помещение без отделки, и Вы сможете воплотить в реальность свои самые смелые коммерческие идеи! Помещение расположено в каркасно-блочном доме. Все коммуникации – центральные. Отличное транспортное сообщение, станция метро "Уручье" в нескольких остановках. Паркинг. Парк, водоём, "Музей камней".
Чистая продажа, без обременений! Торг!
- Звоните прямо сейчас и приезжайте на просмотр!
- Поможем профессионально быстро и выгодно продать Вашу недвижимость в связи с покупкой вышеуказанного объекта недвижимости, размещение рекламных объявлений на лучших специализированных интернет площадках Республики Беларуси, России, стран ближнего и дальнего зарубежья-70 стран мира, Профессиональная фото-видео-аэросъемка, рекламные ролики в социальных сетях, а также использование самых современных и уникальных технологий для успешной продажи Вашего объекта недвижимости. Ответим на Ваши вопросы, предоставим всю необходимую информацию. Напишите Нам в удобный для Вас мессенджер: Viber | Telegram | WhatsApp.
Риэлтер Александр Владимирович.
Параметры объекта
- Тип объекта
Торговое помещение
- Площадь общая
65.50 - 131 м²
- Этаж / этажность
1 / 16
- Год постройки
2025
- Раздельных помещений
1 - 2
- Материал стен
Блочный
- Высота потолков
2.7 м
- Ремонт
Строительная отделка
- Отопление
Есть
- Электроснабжение
220В
- Естественное освещение
Есть
- Вода
Горячая
- Санузел
Есть
- Количество телефонов
1 телефон
- Принадлежность объекта
Частная
- НДС
НДС нет (0%)
- Расположение
В жилом доме
- Юридический адрес
Да
- Новостройка
Да
- Номер договора
31/3 от 03.04.2026
Оснащение
Оживленное место
Видеонаблюдение
Компьютерная сеть
Интернет
Отдельный вход
Александр Чукович
Риэлтер
Примечание
Местоположение
- Область
- Населенный пункт
- Улица
- Номер дома
16
- Район города
- Микрорайон
- Координаты
53.9303, 27.6951
