Купить торговое помещение, г. Минск, просп. Партизанский, 13
609 334 р.
8 226 р.≈ 2 970 $ за м²
Продажа
Следить за ценой
- г. Минскпросп. Партизанский, 13
- Пролетарская
- 5 минут
- На карте
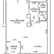
Торговое помещение
Тип
73.90 м²
Площадь
1 из 5
Этаж
08.05.2026ID 4060794
Параметры объекта
- Тип объекта
Торговое помещение
- Площадь общая
73.90 м²
- Этаж / этажность
1 / 5
- Год постройки
1960
- Материал стен
Кирпичный
- Высота потолков
3 м
- Ремонт
Хороший
- Отопление
Есть
- Электроснабжение
Есть
- Естественное освещение
Есть
- Вода
Есть
- Санузел
Есть
- Количество телефонов
2 телефона
- Парковка
Есть
- Принадлежность объекта
Частная
- НДС
НДС нет (0%)
- Расположение
В жилом доме
Оснащение
Кондиционер
Охрана
Сигнализация
Видеонаблюдение
Оживленное место
Компьютерная сеть
Интернет
Отдельный вход
Готовый бизнес
Продавец
Сергей
Контактное лицо
Примечание
Для физлиц уникальное предложение. Продам торговое помещение с арендатором ООО «ИМВБРБ» Wildberries с 2018 года. Это бывшая 3-х комнатная квартира, выведена в нежилой фонд в 2010 году.
Местоположение
Пролетарская5 минут
- Область
- Населенный пункт
- Улица
- Номер дома
13
- Район города
- Микрорайон
- Координаты
53.88491, 27.588615
