Продажа помещений под торговлю, офисы, услуги - Минск, Лынькова, 19/2
2 103 000 р.
1 458 р.≈ 520 $ за м²
Тип
Площадь
Этаж
Описание
Продажа помещений под торговлю, офисы, услуги
г. Минск, ул. М. Лынькова, 19/2
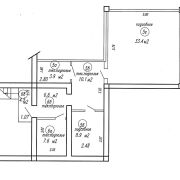
Площади:
- Помещение тех. этажа - 48 м2
- Помещение административно- производственное на 2 этаже - 505,4 м2
- Помещение торговое, складское на 1, 2 и подвальном этажах - 886,5 м2
Общая площадь помещений в кирпичном 2 -этажном здании 1996 года постройки - 1 439,9 м2.
Покупатель не оплачивает услуги риэлтерской организации!
Характеристики:
• отдельный вход, ремонт, санузлы, кондиционирование (частично);
• парковка возле здания;
• рядом транспортная развязка, выезд на МКАД, остановка общественного транспорта
• рампа.
Ваш агент - Смолка Андрей
№45/3 от 14.07.2025 по 13.07.2026
Параметры объекта
- Тип объекта
Торговое помещение
- Площадь общая
1439.90 м²
- Этаж / этажность
2 / 2
- Год постройки
1996
- Материал стен
Кирпичный
- Ремонт
Хороший
- Отопление
Есть
- Электроснабжение
Есть
- Естественное освещение
Есть
- Вода
Есть
- Санузел
Есть
- Количество телефонов
Больше пяти
- Парковка
Есть
- Принадлежность объекта
Частная
- НДС
НДС нет (0%)
- Юридический адрес
Да
- Номер договора
45/3 от 13.07.2025
Оснащение
Оживленное место
Отдельный вход
Рампа
Смолка Андрей
Контактное лицо
Примечание
Местоположение
- Область
- Населенный пункт
- Улица
- Номер дома
19/2
- Район города
- Микрорайон
- Координаты
53.9275, 27.4899
