Прекрасное место для организации агроусадьбы
от 196 280 р.
Тип
Площадь
Этаж
Описание
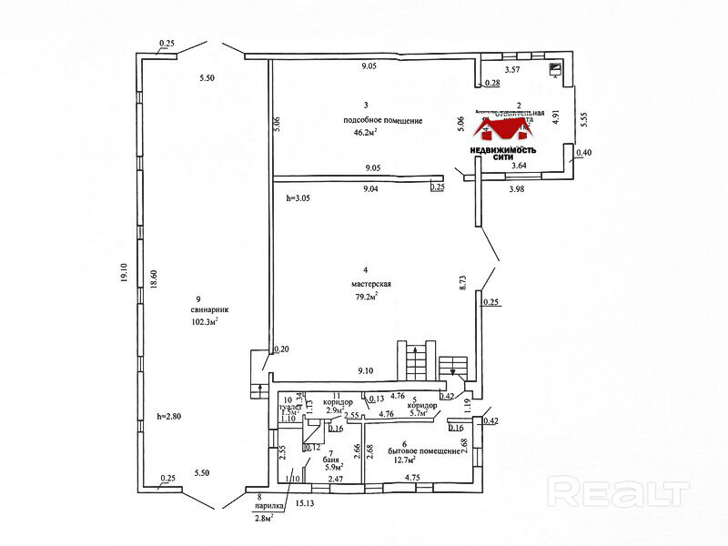
Хотите иметь свое дело? Любите и умеете работать на земле? Тогда этот райский уголок ждет вас! Четыре гектара ухоженной обработанной земли окружены со всех сторон огромным лесным массивом. На участке имеется хозяйственная постройка площадью более 300 кв.м, в которой есть помещение для содержания животных, просторная мастерская, подсобные помещения, большой сухой подвал, есть и бытовое помещение с санузлом и баней. Также на участке есть большая пасека, навесы для техники, для хранения кормов, водоем, колодец. Вы приобретете практически готовое фермерское хозяйство со всей необходимой техникой для обработки земли, ухода за животными и за пасекой, где множество приспособлений для облегчения нелегкой работы на земле сделано заботливыми руками нынешнего хозяина. Можно еще много написать, но лучше всего приехать и посмотреть все самому, ощутить положительную энергетику этого места. Пишите и звоните. Приезжайте на осмотр.
Параметры объекта
- Тип объекта
База отдыха
- Площадь участка
400 соток
- Площадь общая
312 м²
- Этаж / этажность
1 / 1
- Год постройки
1995
- Раздельных помещений
7
- Материал стен
Кирпичный
- Высота потолков
2.7 м
- Ремонт
Нормальный
- Отопление
Есть
- Электроснабжение
220В
- Электрическая мощность
380 кВт
- Естественное освещение
Есть
- Вода
Есть
- Санузел
Есть
- Оборудование
Есть
- Количество телефонов
1 телефон
- Принадлежность объекта
Частная
- НДС
НДС нет (0%)
- Номер договора
27/2 от 07.10.2024
Примечание
Местоположение
- Область
- Район
- Населенный пункт
- Сельсовет
Лебедевский с/с
- Направление
Молодечненское, 86 км от МКАД
- Координаты
54.393267, 26.702027


