Продается доля в просторной, светлой квартире полностью готова к проживанию.
179 900 р.
5 552 р.≈ 2 005 $ за м²
- г. Минскул. Буденного, 16
- Тракторный завод
- 5 минут
- На карте
Комната
Кухня
Этаж
Описание
Продается доля в просторной, светлой квартире полностью готова к проживанию.
Доля ¾ в двухкомнатной квартире, с хорошим ремонтом. В шаговой доступности находятся Антоновский парк и парк 50-летия Великого Октября, где можно отдохнуть от шума и городской суеты
Обустроенная придомовая территория в благоустроенном районе, с отличным транспортным сообщением, в десяти минутах ходьбы расположена станция метро «Тракторный завод, удобные подъездные пути и возможность быстрого выезда на МКАД.
Развитая инфраструктура, в шаговой доступности, расположены школы, детские сады, рядом почта, банк, детская и взрослые поликлиники, множество магазинов, как продовольственного, так и промышленно-бытового назначения, ТЦ «Призма», Экономический университет, Национальный футбольный стадион, спортивно-оздоровительный комплекс «Трактор» с бассейном, тренажёрным залом, сауной, аквааэробикой, где каждый найдет себе занятие по душе.
Звоните и покупайте прямо сейчас, завтра может быть поздно!!!
Лицензия: 02240/446 МЮ РБ, 11.07.2022
Параметры объекта
- Количество комнат
2
- Доля в квартире
3/4
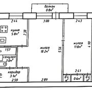
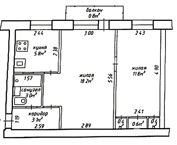
- Площадь общая
43.3 м²
- Площадь комнаты
32.4 м²
- Площадь кухни
5.8 м²
- Год постройки
1965
- Этаж / этажность
4 / 5
- Тип дома
Силикатные блоки
- Балкон
Балкон
- Ремонт
Хороший
- Высота потолков
2.5 м
- Санузел
Совмещенный
- Собственность
Частная
- Условия продажи
Чистая продажа
- Номер договора
26/1 от 14.01.2026
Фаттория
Контактное лицо
Примечание
Местоположение
- Область
- Населенный пункт
- Улица
- Номер дома
16
- Район города
- Микрорайон
- Координаты
53.8835, 27.6135
