Продажа помещения под производство, склад д. Миколка, Узденский р-н
от 560 800 р.
Тип
Площадь
Этаж
Описание
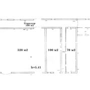
Продается производственное здание общей площадью 753м2 в д.Миколка 40 км от Минска. Здание находится в частной собственности. В здании выполнен косметический ремонт и заменена крыша. Помещение можно использовать под производство, склад, торговую базу. Высота потолков 6 метров. Боксы отапливаемые. У здания большая прилежащая территория (0,27га). Есть возможность парковать и разгружать большегрузные машины. Хорошие подъездные пути. Здание находится на большой территории базы картофелеводства. Территория охраняемая. Реальному покупателю торг!!!
Параметры объекта
- Тип объекта
Производство
- Площадь участка
27.28 соток
- Площадь общая
753 м²
- Этаж / этажность
1 / 1
- Год постройки
1984
- Раздельных помещений
4
- Материал стен
Кирпичный
- Высота потолков
4 м
- Ремонт
Нормальный
- Отопление
Есть
- Электроснабжение
Есть
- Вода
Есть
- Санузел
Есть
- Принадлежность объекта
Частная
- НДС
НДС нет (0%)
- Номер договора
253/1 от 25.11.2025
Оснащение
Охрана
Риэлтер Шульга Юлия
Контактное лицо
Примечание
Местоположение
- Область
- Район
- Населенный пункт
- Сельсовет
Дещенский с/с
- Направление
Слуцкое, 41 км от МКАД
- Координаты
53.504264, 27.431405
