Купить производство, г. Минск, ул. Селицкого, 37/-
6 249 000 - 6 250 000 р.
3 296 - 3 297 р.≈ 1 187 - 1 187 $ за м²
Продажа
Следить за ценой
- г. Минскул. Селицкого, 37/-
- Могилевская
- 10 минут
- На карте
Производство
Тип
1896.20 м²
Площадь
3 из 3
Этаж
24.09.2025ID 3808425
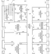
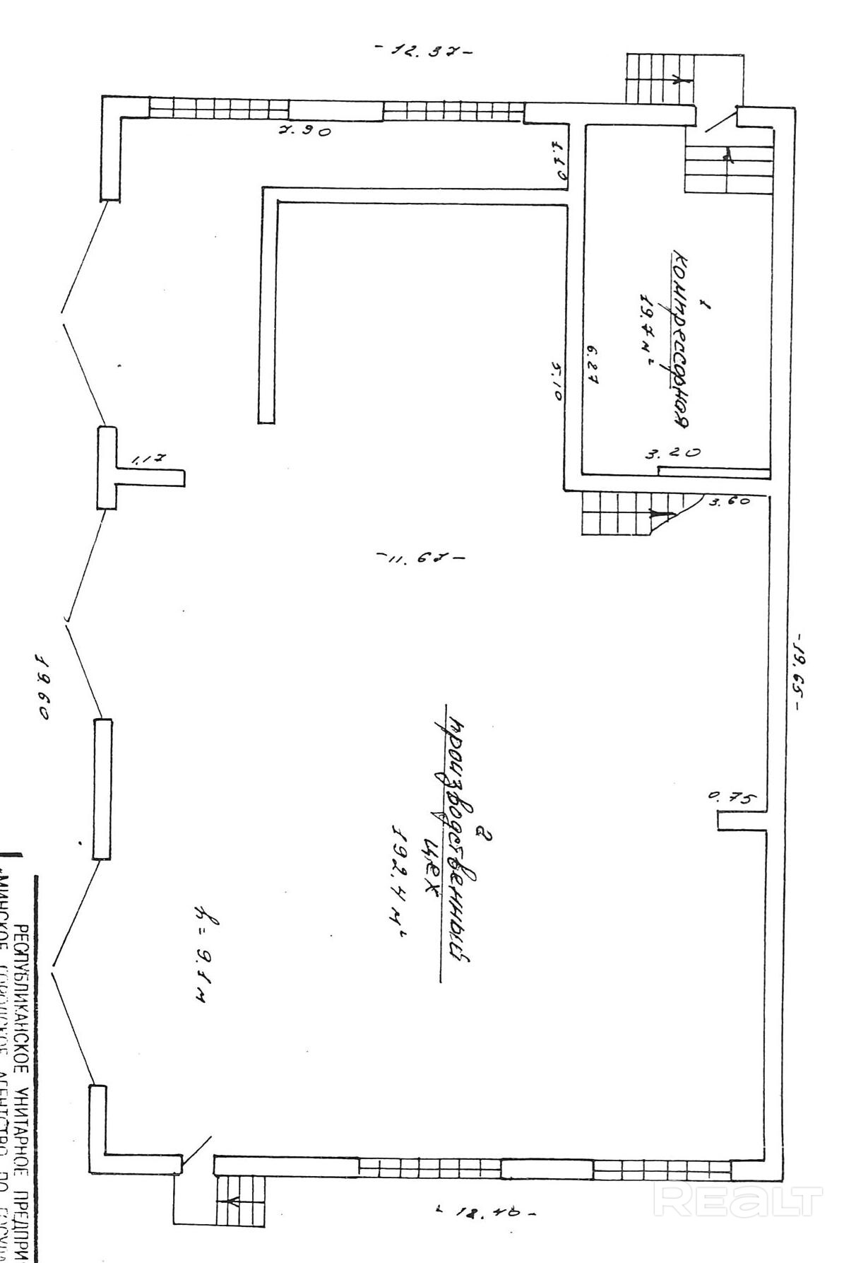
Параметры объекта
- Тип объекта
Производство
- Площадь участка
1.19 сотка
- Площадь общая
1896.20 м²
- Этаж / этажность
3 / 3
- Год постройки
1989
- Класс
B
- Раздельных помещений
30 - 40
- Материал стен
Кирпичный
- Высота потолков
3 м
- Ремонт
Хороший
- Отопление
Есть
- Электроснабжение
220В
- Естественное освещение
Есть
- Вода
Горячая
- Санузел
Есть
- Оборудование
Есть
- Количество телефонов
Больше пяти
- Парковка
Есть
- Принадлежность объекта
Частная
- НДС
НДС включен
- Юридический адрес
Да
Оснащение
Кондиционер
Охрана
Видеонаблюдение
Интернет
Отдельный вход
Мебель
Продавец
Вероника Сергеевна
Контактное лицо
Примечание
Производственно-складской комплекс с административно-хозяйственным зданием по адресу: г. Минск, ул. Селицкого, 37 Земельный участок площадью, га: 1.1996 Капитальные строения: офисное здание, здание для производства строительных материалов, складское, ТП. Локация характеризуется развитой логистикой, близостью транспортных развязок (ЖД, МКАД, трасса М4). Территория комплекса с площадками для открытого хранения стройматериалов, оборудования, парковки служебного и грузового транспорта.
Местоположение
Могилевская10 минут
- Область
- Населенный пункт
- Улица
- Номер дома
37/-
- Район города
- Микрорайон
- Координаты
53.831150802, 27.695302622
