Купить помещение, г. Молодечно, ул. Констанции Буйло, 1/Б
448 834 р.
Тип
Площадь
Этаж
Описание
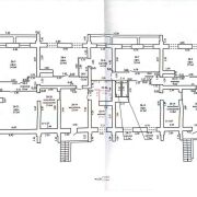
Предлагаем к продаже современное (ввод в эксплуатацию – 2019 год, модернизация в 2022 году) встроенное административное помещение общей площадью 398,10 м2, состоящее из изолированных помещений, расположенное в цокольном этаже 3-ех этажного 27-ти квартирного жилого дома.
Помещения могут быть использованы под размещение офисов, офисов-продажи, сфер услуг, в том числе медицинской сферы; различных образовательных центров, представительств и других целей.
Цокольный этаж имеет три отдельных входа с улицы. В помещении установлена качественная входная металлическая дверь, окна ПВХ, индивидуальные приборы учета водо- и электроснабжения, позволяющие дистанционно снимать и передавать данные приборов учета, а тем самым экономить Ваше время. Предусмотрено холодное водоснабжение, горячее через бойлер, канализация, отопление от электрокотла, пожарная сигнализация, а также интернет (оптоволокно). Помещения выполнены с внутренней отделкой. На прилегающей территории, предусмотрены парковочные места. Установлено видеонаблюдение, выполнено озеленение (устройство газонов, посадка древесно-кустарниковой растительности).
Многоквартирный жилой дом, в котором находится встроенное помещение, расположен в благоустроенном районе города с развитой инженерной и транспортной инфраструктурой. В непосредственной близости расположены такие объекты как: центральный городской стадион, городской бассейн, разно профильные магазины, торговые центры, аптеки, детские сады, школы, поликлиники. В 15 минутах ходьбы находится центральная площадь и парк Победы с летним амфитеатром, Дворец культуры. Рядом имеется остановка общественного транспорта откуда быстро можно добраться в любое место города.
Звоните и мы подробно ответим на все Ваши вопросы и покажем предлагаемый к продаже объект.
А также можем помочь: выгодно купить и продать, срочно выкупить, обменять, помочь в разрешении вопроса с перепланировкой и продажей, найти лучшую для ВАС объект недвижимости!
Параметры объекта
- Тип объекта
Помещение
- Площадь общая
398.10 м²
- Этаж / этажность
0 / 3
- Год постройки
2022
- Раздельных помещений
14
- Материал стен
Блочный
- Ремонт
Хороший
- Отопление
Есть
- Электроснабжение
220В
- Естественное освещение
Есть
- Вода
Горячая
- Санузел
Есть
- Принадлежность объекта
Частная
- Расположение
В жилом доме
- Номер договора
475/24 от 04.09.2024
Оснащение
Отдельный вход
Интернет
Наталья Коваленкова
Агент по недвижимости
Примечание
Местоположение
- Область
- Район
- Населенный пункт
- Улица
- Номер дома
1/Б
- Направление
Молодечненское, 55.8 км от МКАД
- Координаты
54.297272713, 26.831114622
