Офисы в БЦ «Forum Plaza»
4 798 497 р.
Тип
Площадь
Этаж
Описание
Офис в новом БЦ «Forum Plaza»
г. Минск, пер. Козлова, 25
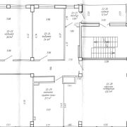
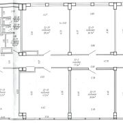
Общая площадь: 945,8 м2 (3-й этаж)
Покупатель не оплачивает услуги риэлтерской организации!
• панорамное остекление, высокий уровень инсоляции;
• приточно-вытяжная система вентиляции, кондиционирование;
• оптоволоконные коммуникации (разведены сети);
• высота потолков: от 2.7 до 6 м.
• отдельные входы с этажей;
• в бизнес-центре: видеонаблюдение, круглосуточная охрана, 3 лифта KONE (Финляндия), презентабельная входная группа и зона ресепшен;
• доступ 24/7.
Инфраструктуру деловой среды бизнес-центра также формируют: собственная служба эксплуатации зданием, кафе, конференц-зал, охраняемая парковка, АЗС, автомоечный комплекс.
Преимущество местоположения: центральная часть города, пересечение 3-х магистралей: ул.Козлова-Академическая-пер.Козлова. Рядом находится водно-парковая зона, Ботанический сад, в 2-х км. несколько станций метро («Площадь Победы», «Пл. Я.Купалы», «Академия наук», «Тракторный завод»).
Ваш агент - Смолка Андрей
Параметры объекта
- Тип объекта
Офис
- Площадь общая
945.80 м²
- Этаж / этажность
3 / 9
- Год постройки
2018
- Материал стен
Блочный
- Ремонт
Хороший
- Отопление
Есть
- Электроснабжение
Есть
- Естественное освещение
Есть
- Вода
Есть
- Санузел
Есть
- Парковка
Есть
- Принадлежность объекта
Частная
- НДС
НДС включен
- Расположение
В бизнес центре
- Юридический адрес
Да
- Номер договора
11/4 от 11.03.2025
Смолка Андрей
Контактное лицо
Примечание
Местоположение
- Область
- Населенный пункт
- Улица
- Номер дома
25
- Район города
- Микрорайон
- Координаты
53.904188698, 27.606424898


