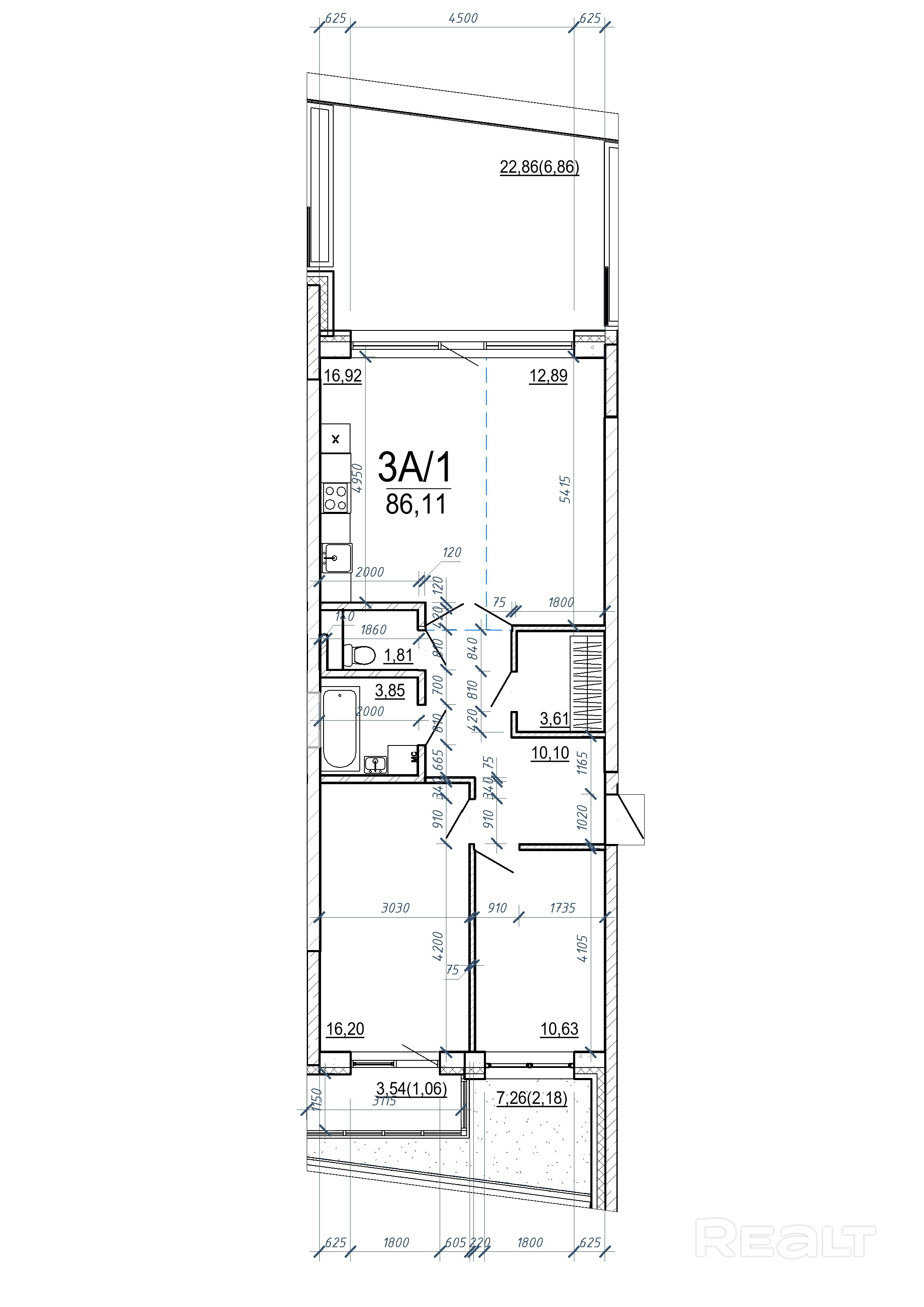
3-комнатная квартира с террасой в ЖК Левада.
701 186 р.
8 143 р.≈ 2 940 $ за м²
Общая
Жилая
Этаж
Описание
3-комнтная квартира в клубном доме с собственной террасой на первой линии ЖК "Левада"
- вид на зеленую зону и экотропу, перед домом застройка не планируется;
- дом 12.2 по генплану, планируется к сдаче в конце этого года;
- большое панорамное остекление;
- в доме всего 60 квартир;
- лифт спускается прямо в подземный паркинг;
- стоимость машино-места 16000 по курсу НБРБ;
- к квартирам в принадлежность идет кладовое помещение, распроложенное в подвале дома;
- закрытая территория на три дома (12.2; 12.1; 12.3), двор без машин;
- квартира подготовлена под «чистовую» отделку: установлена металлическая входная дверь, межкомнатные перегородки, выполнено выравнивание и штукатурка стен, стяжка пола, разводка электрики и подводка оптоволокна, установлены розетки и выключатели, радиаторы отопления, унитаз, выполнено остекление лоджий; выполнена горизонтальная разводка труб отопления с установкой счетчиков тепла.
Есть возможность выбрать квартиру в понравившемся вам подъезде, подробнее с наличием, планировками и ценами у нас на сайте в блоке "Выбрать квартиру" ЖК "Левада".
Жилой комплекс "Левада" — новый уникальный многофункциональный жилой комплекс в г. Минске на берегу реки Свислочь. Комплекс будет представлять собой малоэтажную застройку (от 4 до 9 этажей), дома будут созданы в едином стиле.
Особенности ЖК «Левада», которые его выделяют среди других новостроек Минска:
- уникальное расположение: центральный район города Минска, живописное место на берегу реки «Свислочь» вдали от шумных проспектов, в окружении природно-парковых зон (поблизости находятся парк Победы, водохранилище Дрозды и Комсомольское озеро).
- собственная инфраструктура и дворовая территория комплекса: ландшафтный двор с уникальным рельефом; новые детские и спортивные площадки; фитнес-зал; многоуровневая система безопасности с контролем доступа посторонних лиц и круглосуточным видеонаблюдением; подземный паркинг, вместительная наземная стоянка для жителей и гостей комплекса.
- собственная управляющая компания: служба эксплуатации от застройщика Айрон, которая отвечает за то, чтобы все вопросы, связанные с проживанием в домах решались быстро и профессионально. Специальное мобильное приложение позволит упростить взаимосвязь между жильцами и сервисной службой, повысит скорость оперативного реагирования на заявки, а также позволит жильцам взаимодействовать с оборудованием стоянок и домофонными системами.
ООО «БизнесХаус», УНП 191637403, специальное разрешение (лицензия) Министерства юстиции Республики Беларусь № 02240/281 от 15.07.2014
Параметры объекта
- Количество комнат
3
- Раздельных комнат
3
- Площадь общая
86.11 м²
- Площадь жилая
56.64 м²
- Год постройки
2026
- Этаж / этажность
1 / 5
- Тип дома
Каркасно-блочный
- Балкон
Терраса
- Высота потолков
2.7 м
- Санузел
Раздельный
- Стоянка автомобиля
Есть
- Собственность
Долевое строительство
- Условия продажи
Чистая продажа
- Номер договора
46/3 от 07.10.2025
- Вид из окон
Лес, Парк, Во двор
Специалист
Контактное лицо
Примечание
Местоположение
- Область
- Населенный пункт
- Улица
- Район города
- Микрорайон
- Координаты
53.938249761, 27.521383873
