Купить 3-комнатную квартиру, г. Минск, ул. Коммунистическая, 22
565 439 р.
8 078 р.≈ 2 843 $ за м²
Чистая продажа
Следить за ценой
- г. Минскул. Коммунистическая, 22
- Площадь Победы
- 5 минут
- На карте
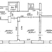
70 м²
Общая
51.3 м²
Жилая
1 из 2
Этаж
25.02.2026ID 3980737
Параметры объекта
- Количество комнат
3
- Раздельных комнат
3
- Площадь общая
70 м²
- Площадь жилая
51.3 м²
- Год постройки
1950
- Этаж / этажность
1 / 2
- Число уровней
2
- Тип дома
Кирпичный
- Планировка
Сталинка
- Ремонт
Отличный
- Высота потолков
3 м
- Санузел
2 и более
- Собственность
Частная
- Условия продажи
Чистая продажа
- Вид из окон
Во двор
Примечание
Квартира разделена на два отдельных апартамента, каждый со своим санузлом и кухней, есть дополнительные площади за счет антресолей, около 10 метров. Два отдельных входа из общего тамбура. Отличный вариант для большой семьи или для выгодной сдачи в аренду. Все коммуникации новые, квартира после полного ремонта, готова к заселению или сдаче в аренду сразу после покупки. Окна во двор, в квартире тихо. Лучшее место для жизни в центре. Агентам не беспокоить!
Местоположение
- Область
- Населенный пункт
- Улица
- Номер дома
22
- Район города
- Координаты
53.9119, 27.5655
