Купить 3-комнатную квартиру, г. Минск, ул. Фрунзе, 9
1 127 440 р.
15 615 р.≈ 5 540 $ за м²
Чистая продажа
Следить за ценой
- г. Минскул. Фрунзе, 9
- Площадь Победы
- На карте
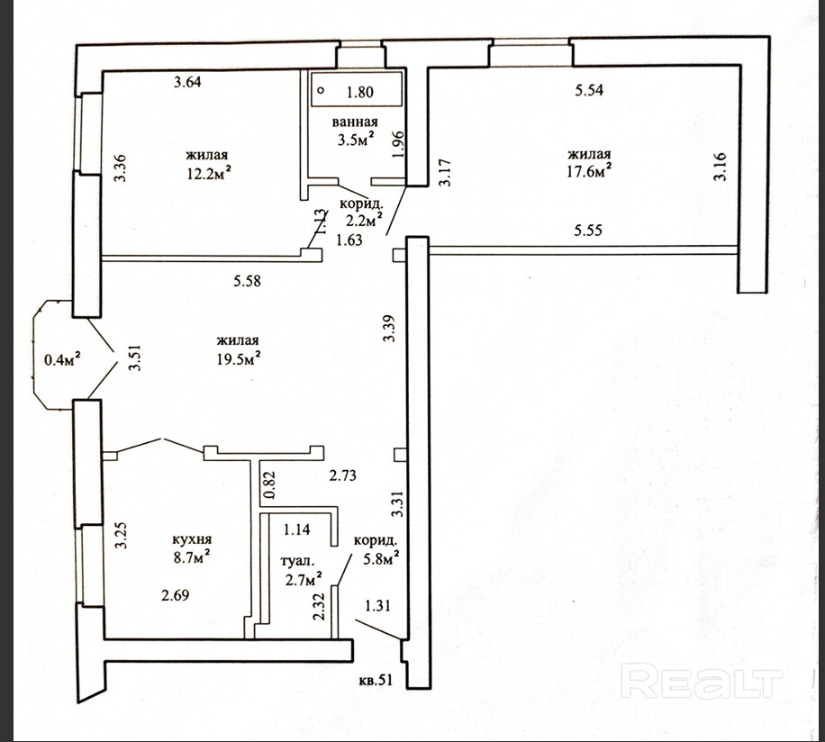
72.2 м²
Общая
49.3 м²
Жилая
2 из 4
Этаж
06.02.2026ID 3857835
Параметры объекта
- Количество комнат
3
- Раздельных комнат
3
- Площадь общая
72.2 м²
- Площадь жилая
49.3 м²
- Год постройки
1955
- Год капитального ремонта
2022
- Этаж / этажность
2 / 4
- Тип дома
Кирпичный
- Балкон
Балкон
- Ремонт
Отличный
- Стоянка автомобиля
Есть
- Собственность
Частная
- Условия продажи
Чистая продажа
Удобства
Видеодомофон
Интернет
Телефонная сеть
Видеонаблюдение
Продавец
Сергей
Контактное лицо
Примечание
Продается трехкомнатная квартира по улице Фрунзе в городе Минске, для ценителей качественного жилья. Центр Минска, площадь Победы, парк имени Горького, закрытая дворовая территория. Трех комнатная квартира на 2 этаже, балкон, экологические отделочные материалы, все для вашей качественной жизни.
Местоположение
- Область
- Населенный пункт
- Улица
- Номер дома
9
- Район города
- Микрорайон
- Координаты
53.9056, 27.5762
