Продается дача в современном стиле в СТ Пограничник!
140 648 р.
Тип
Участок
Общая
Жилая
Описание
Продается дача в современном стиле в СТ Пограничник!
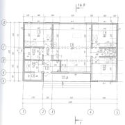
О даче: участок 10 соток. Из плитки вымощены парковочные места для автомобилей и дорожка к дому. Габаритные размеры дома 8.2 на 13.2 м. Фундамент - монолитные сваи 250 мм. Наружные стены - деревянные каркасные толщиной 150 мм. с утеплением из минеральной ваты 150 мм. Наружная отделка фасада - имитация бруса 16 мм с последующей покраской с вентилируемым зазором. Внутренние стены - деревянные каркасные толщиной 150 мм и 100 мм с утеплением из минеральной ваты. Платформа пола - чистовое покрытие пола по плите ЦСП 24 мм., лаги пола с утеплением минераловатной плитой 200 мм. Крыша - стропильная, скатная, с утеплением минераловатной плитой 200 мм. Кровля – металлочерепица. Все деревянные элементы, использованные в конструкции дома - антисептированные. Все отделочные материалы из дерева покрыты лакокрасочными пропитками. Грамотная планировка: 3 раздельные спальни (12.2 м2, 10.9 м2, 10.9 м2), просторная кухня-гостиная (33.6 м2), 2 сан.узла. Установлены ПВХ-стеклопакеты. Выполнены черновые работы. Дом готов к чистовой отделке. Коммуникации:
· Электрика: ввод в дом кабель АВВГ 5х6 алюминий, разводка по дому (силовые розетки кабель ВВГ 3х2,5 медь, свет кабель ВВГ 3х1.5 медь с устройством заземляющего контура)
· Канализация: септик (бетон с глухим дном) общим объёмом 9 м3
· Разведена сантехника по дому с выводом под бойлер
· Скважина
Месторасположения: дом располагается в 35 километрах от МКАД и в 4 километрах от г. Дзержинск. В Дзержинске есть все необходимое для Вашего комфортного проживания: множество продуктовых магазинов, поликлиника, образовательные учреждения, тренажерные залы, кафе и кофейни, почтовые и банковские отделения, аптеки и многое другое.
Транспортное сообщение: в 1 км от дома остановка общественного транспорта. Через нее проходят: автобусы №487с, 287с. Автобус 487с идет в город до ст. м. Малиновка и Петвровщина. Кроме этого в г. Дзержинск ходит большое количество общественного транспорта.
Зеленая зона: возле дом много зелени, а также озеро Ясютевичи – это позволит Вам приятно провести досуг со своей семьей и домашними питомцами.
Чистая продажа!
Ключи в день сделки.
Параметры объекта
- Тип объекта
Дача
- Площадь участка
10 соток
- Площадь общая
89.4 м²
- Площадь жилая
34 м²
- Площадь кухни
33.6 м²
- Уровней в доме
1
- Год постройки
2021
- Процент готовности
90
- Материал крыши
Металл
- Отопление
Электрическое
- Газ
Нет
- Канализация
С/у на улице
- Электроснабжение
Есть
- Вода
Скважина
- Статус земли
Частная собственность
- Условия продажи
Чистая продажа
- Номер договора
115/1 от 26.01.2026
Примечание
Местоположение
- Область
- Район
- Населенный пункт
- Сельсовет
Дзержинский с/с
- Направление
Брестское, 35 км от МКАД
- Координаты
53.717655429, 27.077296589
