Дом, в который хочется вернуться
1 226 091 р.
- г. Минскпер. Севастопольский, 8
- Московская
- 15 минут
- На карте
Тип
Участок
Общая
Жилая
Описание
Дом, в который хочется вернуться
Этот дом создан для тех, кто ценит не просто квадратные метры, а пространство, наполненное смыслом.
Он подойдёт семье, которая выбирает баланс: между природой и инфраструктурой, приватностью и общением, стилем и функциональностью.
Пространство с характером
С первого взгляда дом располагает к себе: тёплое дерево, высокие потолки, мягкий свет, простые и честные материалы. Всё здесь — про внутреннюю свободу, спокойствие и устойчивость.
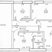
На первом этаже вы найдёте всё для активной дневной жизни:
• прихожая с гардеробной
• кухня-гостиная с потолками до 6 метров и выходом на террасу
• уютный кабинет для работы или уединения
• мастерская — пространство для хобби или малого дела
• котельная, кладовая, санузел
На мансарде — тишина и приватность:
• две светлые детские
• спальня с гардеробной
• полноценная ванная
Интерьер, в котором легко дышать
Все материалы подбирались с учётом эстетики, износостойкости и тактильного комфорта.
• Пол — керамогранит, паркет, наливной пол (мастерская)
• Потолки — гипсокартон, в зоне кухни-гостиной — дерево
• Лестница на металлическом каркасе с дубовыми ступенями
• Ванная комната — тёплый терраццо, акцентная зелёная плитка ручной формовки, сантехника премиум-класса
• Мебель — лаконичная, с продуманным хранением (Egger, Blum, AGT)
Кухня-гостиная — центр притяжения
Уютная, но просторная.
Современная кухня с островом, фурнитурой Blum и техникой Bosch, Siemens, Elica, фильтрацией воды, большой гранитной мойкой и удобной системой хранения.
Высокие окна пропускают максимум света.
Здесь будет вкусно, тепло и спокойно — будь то утренний кофе на острове или ужин с друзьями за массивным столом.
Технологии и комфорт
• Наружные стены — газосиликат + утепление
• Перекрытия — железобетонные
• Кровля — Budmat
• Окна — ПВХ-профиль 80 мм Vital
• Отопление — тёплые полы (1 этаж, мастерская, санузлы), радиаторы в спальнях
• Газовый котёл Viessmann
• Центральная вода и канализация
• Вентиляция через вентканалы
• Выводы под кондиционеры в каждой комнате
Для кого этот дом?
Для семьи, которая хочет жить без суеты.
Для тех, кто ценит тишину, но любит принимать гостей.
Кто хочет работать в своём ритме, обустроить мастерскую, детскую или кинозал, кто любит вкусную еду, мягкий свет и продуманный уют.
Дом готов к жизни — вам остаётся только наполнить его собой.
Параметры объекта
- Тип объекта
Дом
- Площадь участка
6 соток
- Площадь общая
210.8 м²
- Площадь жилая
104.2 м²
- Уровней в доме
2
- Год постройки
2023
- Процент готовности
100
- Новостройка
Да
- Материал стен
Силикатные блоки
- Материал крыши
Черепица
- Ремонт
Евроотделка
- Мебель
Есть
- Отопление
На газу
- Газ
Есть
- Канализация
Центральная
- Электроснабжение
Есть
- Вода
Центральный водопровод
- Статус земли
Частная собственность
- Условия продажи
Чистая продажа
- Номер договора
74/4 от 30.07.2025
Ирина Викторовна
Контактное лицо
Примечание
Местоположение
- Область
- Населенный пункт
- Улица
- Номер дома
8
- Район города
- Микрорайон
- Координаты
53.939960029, 27.61264239
